EasyManua.ls Logo

Emerson EV2000 Series - Page 24

Emerson EV2000 Series
131 pages
Print Icon
To Next Page IconTo Next Page
To Next Page IconTo Next Page
To Previous Page IconTo Previous Page
To Previous Page IconTo Previous Page
Loading...
20 Chapter 3 Installation and Wiring
EV2000 Series Universal Variable Speed Drive User Manual
Applicable models: EV2000-4T0110G/0150P~EV2000-4T2800P
(+)
(-)
P1
R0
T0
PP
N
PB
R
S
T
R
S
T
M
U
V
W
PE
Breaker
PG
P24
COM
X8
X7
PE
EV2000
AO1
AO2
DO
COM
GND
TB
TC
TA
485-
485+
X1
X2
X3
X4
X5
X6
X7
X8
FWD
REV
PLC
COM
VCI
GND
VRF
PE
~~010V/020mA
Y1
Y2
CME
Output 1
Output 2
CCI
P24
COM
I
V
CN10
010V
.
.
.
CN16
0/4 20mA
RS232
RS485
CN14
TXD
RXD
GND
CN17
0 10V
0/4 20mA
.
.
.
.
.
.
.
.
.
DCL DC reactor
(connect externally,optional
parts for 75kW or below)
Braking resistor
or braking unit
3-phase
380V
50/60Hz
Forward/stop
Reverse/stop
Multi-function input1
Multi-function input2
Multi-function input3
Multi-function input5
Multi-function input4
Multi-function input6
Multi-function input7
Multi-function input8
Aux.
Power
supply
DC current
meter
0/4-20mA current
signal
Frequency meter
Output 0-24V pulse
signal
Bi-direction open
collector output
Common terminal
Programmable
relay output
RS485
communication port
RS232
communication
port
Speed command
010V
(Connect optional parts
externally)
P24
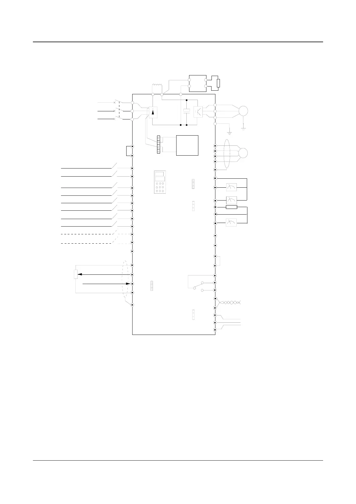
Fig. 3-10 Basic wiring 2
Notes:
1. Terminal CCI can be input voltage or current signal by switching the jumper CN10 on control board;
2. The auxiliary power supply’s AC supply comes from R0 and T0 which are shorted with R and T of 3-phase input. If you want
to use an external AC supply, the shorting bars between R and R0, T and T0 have to be removed before connecting the external
AC supply via R0 and T0. Otherwise, short-circuit will occur.
3. It is prohibited to connect to the control power supply without disconnecting the short-circuit bar, so as to avoid short-circuit
accident;
4. If external braking parts are needed, then braking kit and braking resistors should be included; Pay attention to the polarity of
the braking kit when wiring;
5. In the above figure, “O” is the terminal in main circuit, and” is the control terminal;
6. Refer to section 3.3.2 for the using of control terminals.

Table of Contents

Related product manuals