EasyManua.ls Logo

Emerson SKCD200220 - Page 11

Emerson SKCD200220
54 pages
Print Icon
To Next Page IconTo Next Page
To Next Page IconTo Next Page
To Previous Page IconTo Previous Page
To Previous Page IconTo Previous Page
Loading...
Commander SK Getting Started Guide 11
Issue Number: 9 www.controltechniques.com
Safety information Rating data
Mechanical
installation
Electrical
installation
Keypad and display Parameters
Quick start
commissioning
Diagnostics Options
UL listing
information
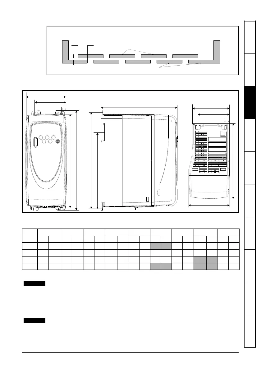
Figure 3-2 Fire enclosure baffle construction
The drive complies with the requirements of IP20 as standard.
Figure 3-3 Commander SK dimensions
Mounting holes: 4 x M4 holes (size A to C), 4 x M5 holes (size D)
Table 3-1 Commander SK dimensions
*Size C and D are not DIN rail mountable.
The DIN rail used should conform to DIN46277-3.
Not less
th a n 2 X
B affle p la te s (m a y b e
above or below bottom
of enclosure)
X
Bottom of fire
enclosure
Not less
than 2
times ‘X’
Baffle plates (may be above or
below bottom of enclosure)
Bottom of fire enclosure
X
E
F
G
D
C
Drive
size
ABCDEFGH*I
mm in mm in mm in mm in mm in mm in mm in mm in mm in
A 140 5.51 154 6.06 11 0.43 64 2.52 75 2.95
145 5.71 104 4.09 143 5.63
B 190 7.48 205 8.07 10.9 0.43 65.9 2.6 85 3.35 77 3.0 156 6.15 155.5 6.12 194 7.64
C 240 9.45 258 10.16 10.4 0.41 81.1 3.2 100 3.94 91.9 3.62 173 6.81
244 9.61
D 300 11.81 335 13.19 14.5 0.57 100.5 3.96 115 4.53
198 7.80 315 12.4
If DIN rail mounting is used in an installation where the drive is to be subjected to shock
or vibration, it is recommended that the bottom mounting screws are used to secure the
drive to the back plate.
If the installation is going to be subjected to heavy shock and vibration, then it is
recommended that the drive is surface mounted rather than DIN rail mounted.
NOTE
The DIN rail mounting mechanism has been designed so no tools are required to install
and remove the drive from a DIN rail. Please ensure the top mounting lugs are located
correctly on the DIN rail before installation is initiated.
NOTE

Related product manuals