EasyManua.ls Logo

Emerson SP3402 - Output Sharing Choke (for Motoring Drives Only); Otlx0 X Output Sharing Choke; Centre Tapped Output Sharing Chokes

Emerson SP3402
220 pages
Print Icon
To Next Page IconTo Next Page
To Next Page IconTo Next Page
To Previous Page IconTo Previous Page
To Previous Page IconTo Previous Page
Loading...
Safety
Information
Introduction
Product
information
System
design
Mechanical
installation
Electrical
installation
Getting
started
Optimisation Parameters
Technical
data
Component
sizing
Diagnostics
Unidrive SP Regen Installation Guide 51
Issue Number: 2 www.controltechniques.com
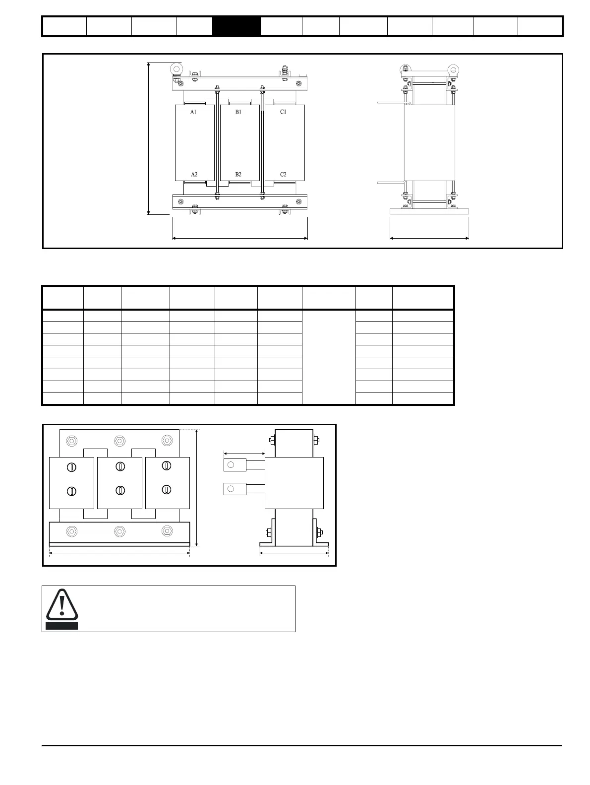
Figure 5-10 Switching frequency filter inductor type 4 dimensions
5.3.3 Output sharing choke (for motoring drives only)
Table 5-7 400 / 600V output sharing choke ratings
Figure 5-11 OTLx0x output sharing choke
Centre tapped output sharing chokes
560(REF)
H
LD
Model
Current
A
Inductance
µH
Width (W)
mm
Depth (D)
mm
Height (H)
mm
Cable length
(CLa) mm
Weight
kg
Part No.
OTL401 221 40.1 240 220 210
71.5
20 4401-0197-00
OTL402 267 34 242 220 205 20 4401-0198-00
OTL403 313 28.5 242 220 205 25 4401-0199-00
OTL404 378 23.9 242 220 205 25 4401-0200-00
OTL601 135 103.9 242 170 203 20 4401-0201-00
OTL602 156 81.8 242 170 203 20 4401-0202-00
OTL603 181 70.1 242 200 203 20 4401-0203-00
OTL604 207 59.2 242 200 203 20 4401-0204-00
U1
U2
V1
V2
W1
W2
H
W
D
CL(a)
M10
M10
The OTLX1X centre tapped output sharing chokes can only
be used when two Unidrive SPM drives are paralleled
together. For all other combinations the OTLX0X output
sharing choke must be used.
CAUTION

Table of Contents

Related product manuals