EasyManua.ls Logo

Esco Class II - Page 68

Esco Class II
73 pages
Print Icon
To Next Page IconTo Next Page
To Next Page IconTo Next Page
To Previous Page IconTo Previous Page
To Previous Page IconTo Previous Page
Loading...
58
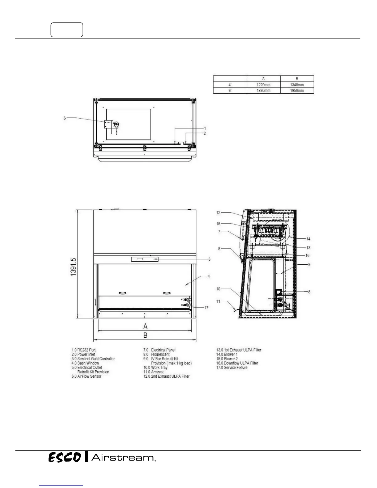
8.5. AC2-_G_ Engineering Drawing

Related product manuals