EasyManua.ls Logo

Eurotech PROTEUS - Layout and Dimensions

Eurotech PROTEUS
76 pages
Print Icon
To Next Page IconTo Next Page
To Next Page IconTo Next Page
To Previous Page IconTo Previous Page
To Previous Page IconTo Previous Page
Loading...
Hardware implementation
Issue C
31
Layout and dimensions
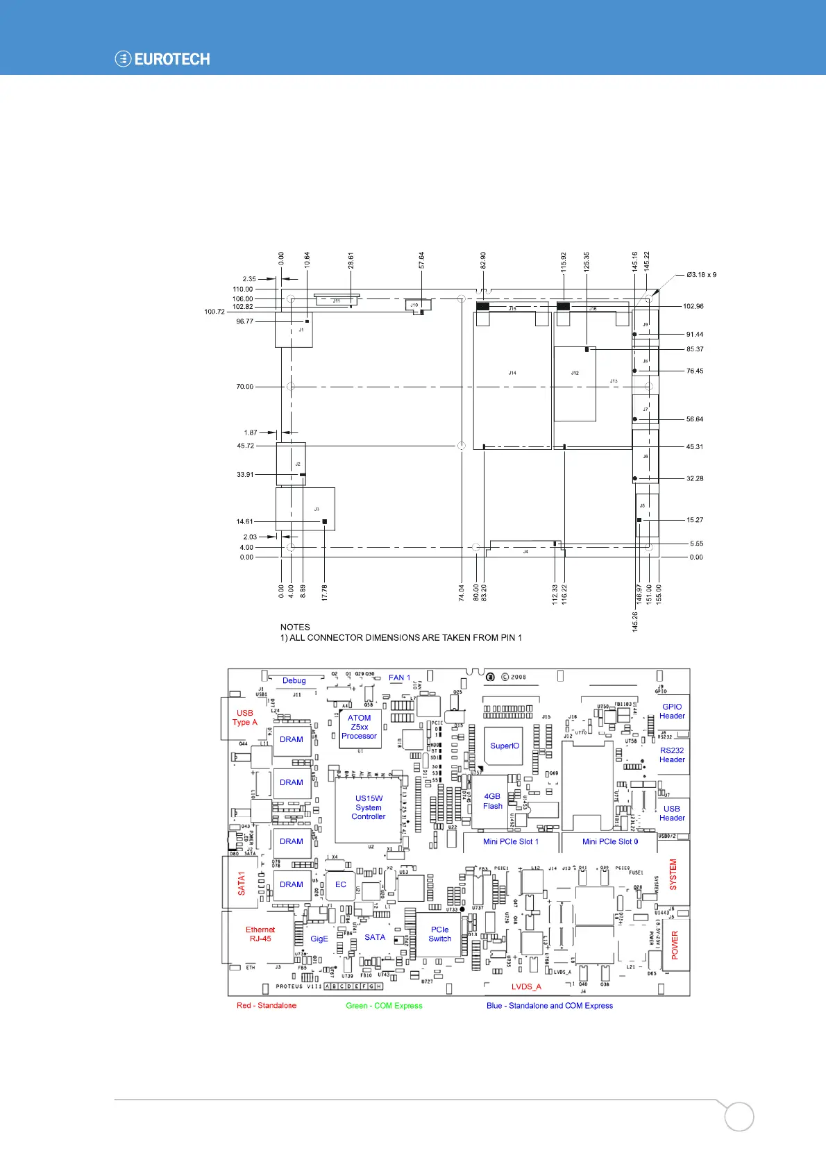
The following PROTEUS diagram show the connector placement for both COM Express
and standalone implementations:
Primary side

Table of Contents

Related product manuals