EasyManua.ls Logo

EWM PHOENIX 421 EXPERT PULS forceArc - 5.2.11 MIG;MAG Push;Pull Welding Torch; 5.2.11.1 Pin Assignments

EWM PHOENIX 421 EXPERT PULS forceArc
146 pages
Print Icon
To Next Page IconTo Next Page
To Next Page IconTo Next Page
To Previous Page IconTo Previous Page
To Previous Page IconTo Previous Page
Loading...
Functional characteristics
MIG/MAG welding
Item No.: 099-004833-EWM01 67
5.2.11 MIG/MAG Push/Pull welding torch
The most important requirement for the greatest degree of efficiency and weld seam quality is the smooth
conveyance of the wire electrode. This is particularly problematic when:
Longer tube packages are used,
Wire electrodes have poor sliding properties,
Wire electrodes have poor bending strength and
An especially even wire outlet speed is required.
In this process, additional conveying aids in the torch produce significant improvements in comparison
with pure feed wire conveyors. In addition to a pushing wire feed (PUSH) in the power source / wire feed
case, a pulling wire feed (PULL) is used in the torch.
The two feed motors are synchronised by a current regulator.
Welding torches without potentiometers
Operating elements Functions
1 torch trigger Welding On/Off
Push/Pull torch with one potentiometer
Infinitely adjustable setting of welding performance (Up/Down function)
Changeover switch in WF unit to "Up / Down" (see "Internal operating elements" chapter)
Operating elements Functions
1 torch trigger Welding On/Off
1 rotary dial Infinite adjustment of the wire speed
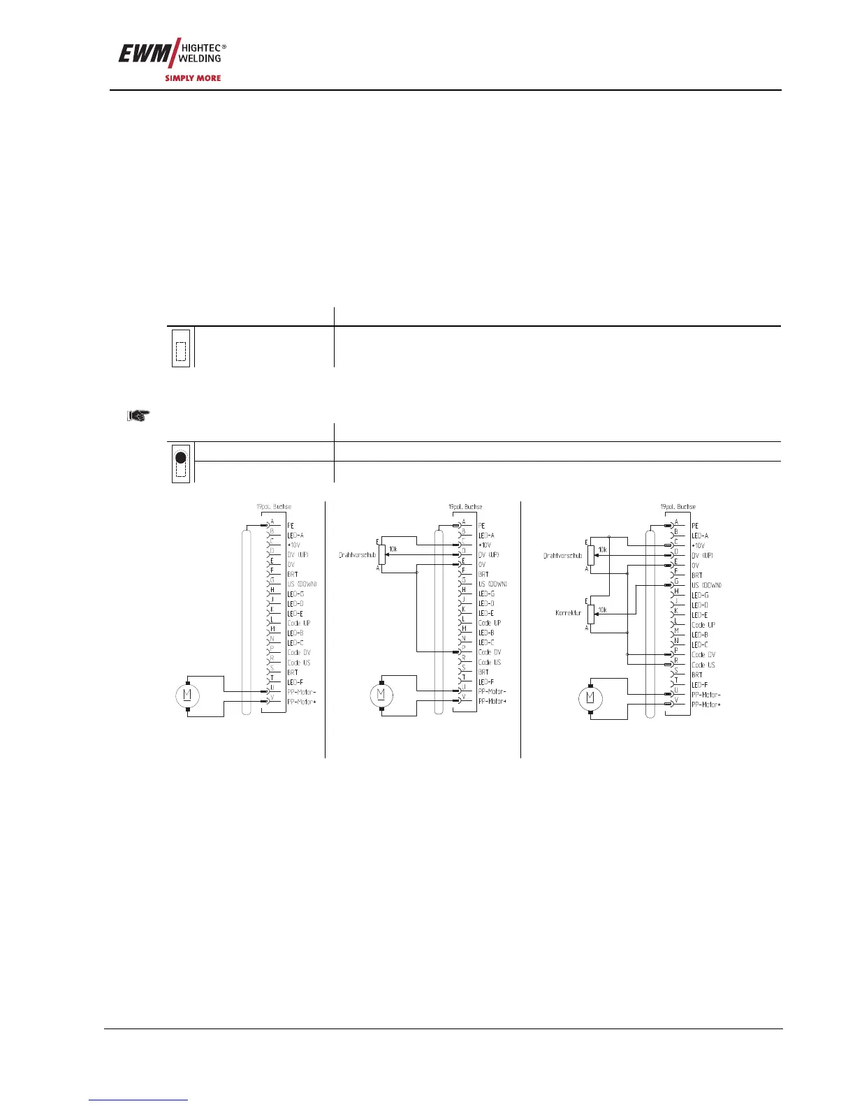
5.2.11.1 Pin assignments
No potentiometers
With potentiometer for wire
feeding speed
With potentiometers for wire feeding
speed and arc length correction
Figure 5-29

Table of Contents

Related product manuals