EasyManua.ls Logo

EXE RISE D8 - Brake and Limit Switch Maintenance; Adjustment

EXE RISE D8
64 pages
Print Icon
To Next Page IconTo Next Page
To Next Page IconTo Next Page
To Previous Page IconTo Previous Page
To Previous Page IconTo Previous Page
Loading...
56 / 64
links are those links which stop on, resp. immediately at the inlet of the drive and reversing wheels at
constant stroke when switching from lifting to lowering. These chain links are charged especially heavy by
dynamic vibrations and have therefore to be lubricated carefully in shorter intervals. The choice of a suitable
lubricant is dependent from the operating place and the existent environment conditions. An appropriate
lubricant recommendation can be inquired by RWM. For average applications a high pressure resistant
lubricant will do.
7.2 BRAKE AND LIMIT SWITCH MAINTENANCE / ADJUSTMENT
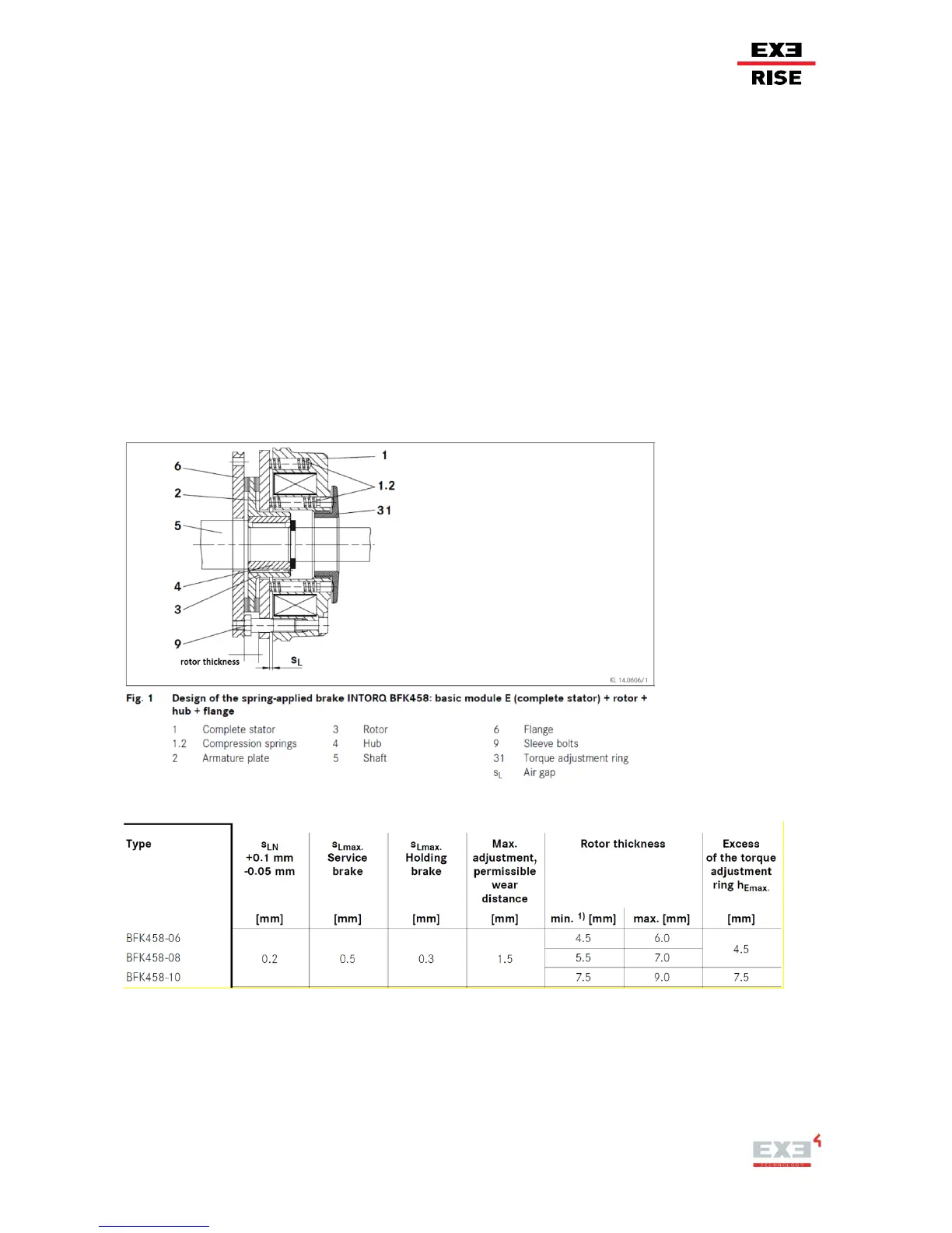
EXE-Rise chain hoist are equipped with an INTORQ brake.
1. Measure the rotor thickness of the brake by means of a Vernier Caliper gauge. (See table below for
allowable Values)
2. If required, exchange the entire rotor. See chapter “SPARE PART “ for further instruction.
3. Check the air gap ”sL” near the fixing screws between the armature plate and stator using afeeler
gauge.
4. Compare air gap measured to maximally permissible air gap ”sL max.”, (see table below)
5. If required, set air gap to ”sLN”
Figure 37: “Brake components
Any intervention on the brake is prohibited. Only RWM authorised service engineers are allowed to carry out
maintenance work on brakes.

Table of Contents

Related product manuals