EasyManua.ls Logo

Exmark Quest 4500-450 - Side Discharge; Transporting

Exmark Quest 4500-450
56 pages
Print Icon
To Next Page IconTo Next Page
To Next Page IconTo Next Page
To Previous Page IconTo Previous Page
To Previous Page IconTo Previous Page
Loading...
Operation
engine,removethekey,andwaitforallmoving
partstostopbeforeleavingtheoperatingposition.
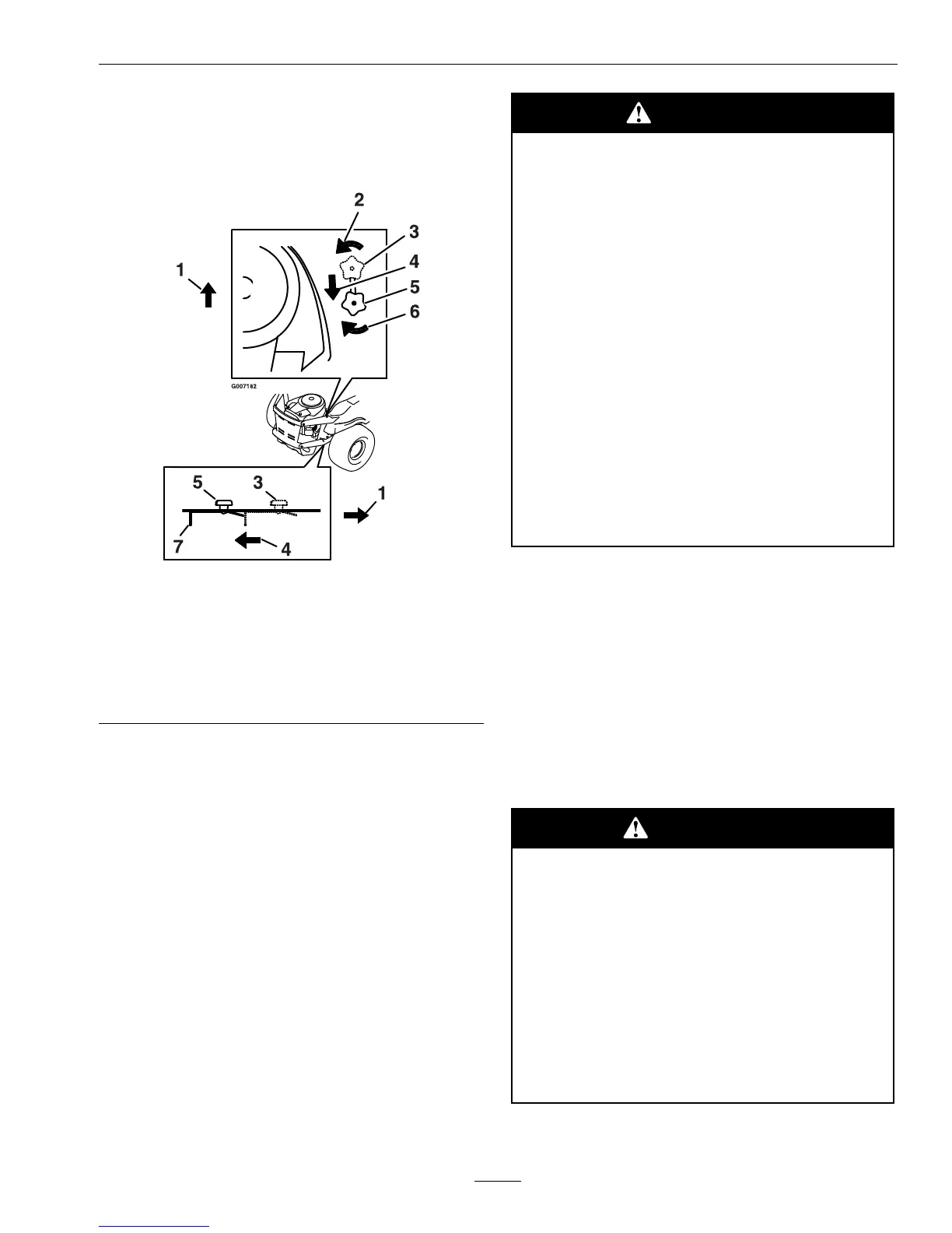
3.Locatethebypassreleaseknobsoneithersideof
theenginedeck(Figure15).
Figure15
1.Frontofthemachine.5.Leverpositionfor
pushingthemachine
2.Rotatebypassrelease
knobcounterclockwise
6.Rotatebypassrelease
knobclockwise
3.Leverpositionfor
operatingthemachine.
7.Releaselever
4.Pullleverinthisdirection
4.Loosentheknobbyturningcounterclockwise.
Thenpullthereleaseleverontheundersideof
machine(Figure15)towardsthebackofthe
machineandretightentheknobtoholdthe
releaseleverbackinthereleasedstate.Repeatthis
oneachsideofthemachine.
5.Releasetheparkingbrake.Themachineisnow
abletobepushedbyhand.
ToOperatetheMachine
Loosenthebypassknob,pushthereleaselevers
forward,andretightentheknobtoengagethedrive
system(Figure15).
SideDischarge
Themowerhasahingeddischargedeectorthat
dispersesclippingstothesideanddowntowardthe
turf.
DANGER
Withoutthedischargedeector,mulchkit,
orentiregrasscollectionsystemmountedin
place,youandothersareexposedtoblade
contactandthrowndebris.Contactwith
rotatingmowerblade(s)andthrowndebris
willcauseinjuryordeath.
Neverremovethedischargedeector
fromthemowerbecausethedischarge
deectorroutesmaterialdowntoward
theturf.Ifthedischargedeectorisever
damaged,replaceitimmediately.
Neverputyourhandsorfeetunderthe
mower.
Nevertrytocleardischargeareaor
mowerbladesunlessyoumovethemove
thebladecontrolswitchtoOffandrotate
theignitionkeytoOff.Alsoremovethe
keyandpullthewireoffthesparkplug(s).
Transporting
TransportingaUnit
Useaheavy-dutytrailerortrucktotransportthe
machine.Lockbrakeandblockwheels.Securely
fastenthemachinetothetrailerortruckwithstraps,
chains,cable,orropes.Besurethatthetrailerortruck
hasallnecessarylightingandmarkingasrequiredby
law .Secureatrailerwithasafetychain.
CAUTION
Thisunitdoesnothaveproperturn
signals,lights,reectivemarkings,ora
slowmovingvehicleemblem.Drivingona
streetorroadwaywithoutsuchequipment
isdangerousandcanleadtoaccidents
causingpersonalinjury.Drivingonastreet
orroadwaywithoutsuchequipmentmayalso
beaviolationofStatelawsandtheoperator
maybesubjecttotrafcticketsand/ornes.
DoNotdriveaunitonapublicstreetor
roadway.
25

Table of Contents

Related product manuals