EasyManua.ls Logo

Extra 300/SC - Page 462

Extra 300/SC
482 pages
Print Icon
To Next Page IconTo Next Page
To Next Page IconTo Next Page
To Previous Page IconTo Previous Page
To Previous Page IconTo Previous Page
Loading...
1
1
2
2
3
3
4
4
D D
C C
B B
A A
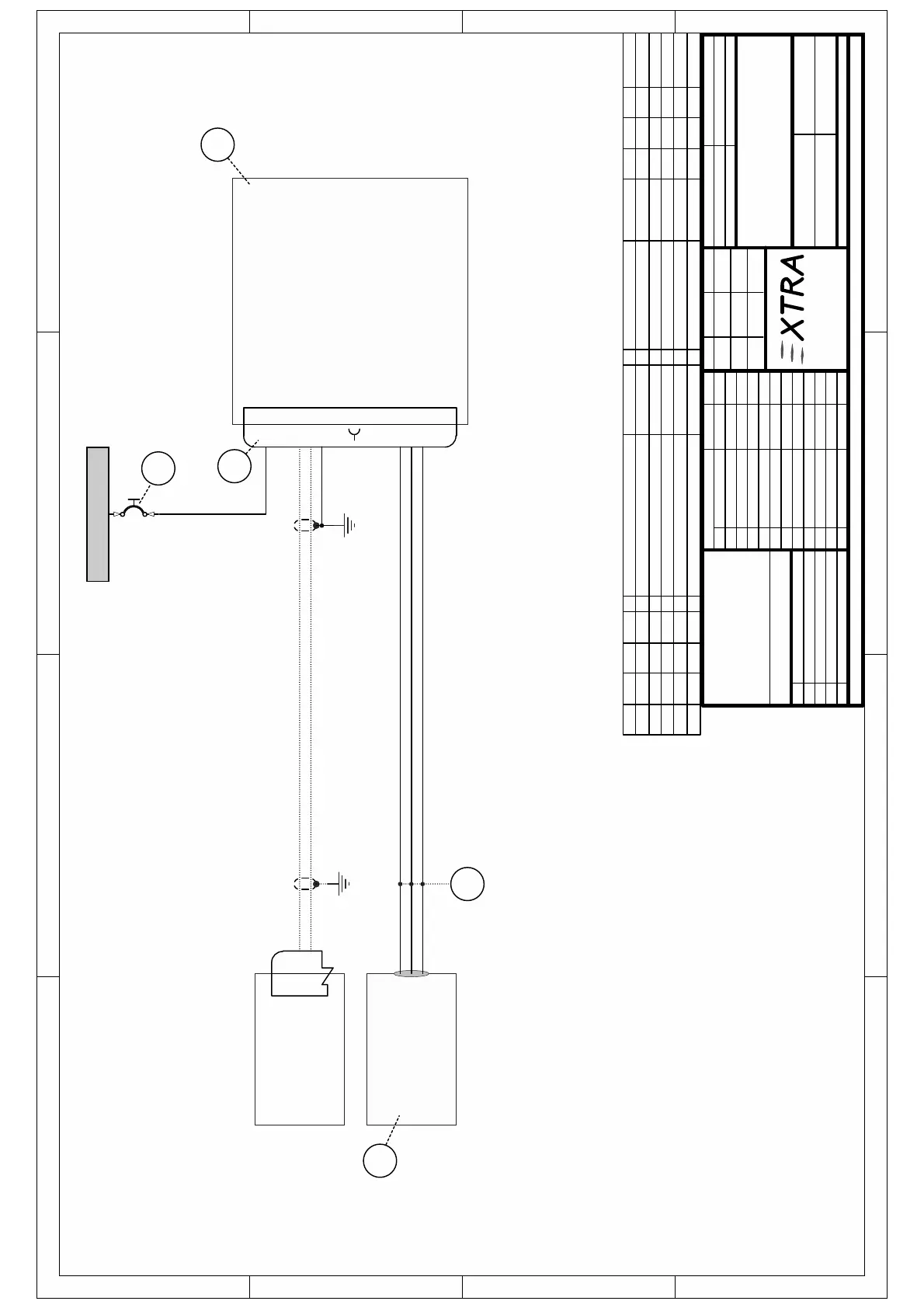
EA 300
FUEL FLOW FS-450
MAIN BUS
GARMIN GNC-420/GNS-430/GNS-530
EA-93102.33
31.01.06 HW
P4001
2A
FUEL FLOW
RS 232 Out 1
RS 232 In 1
56
57
ws
bl
ws
bl
9
6
RS 232 In
RS 232 Out
FS-450
2 Ground
1
3
14-28 VDC
Left (and Right) Transduser Power
5 Left and Right Transducer Ground
8
7
Right Fuel Flow Signal
Left Fuel Flow Signal
A4
1 1
rot
schwarz
weiß weiß
blau
orange
schwarz
rot
rot
weiß
blau
orange
FLOW SENSOR
GPS
EA300942
= ==
0204 03 BenennungNr01 Teilekennzeichen ZF Werkstoff Abmessungen Menge GewichtEinheit MaWi-Nr.
1
2
3
30611
201-B
4
5
FLOW SENSOR
FUEL FLOW INDICATOR FS-450 450000
CONNECTOR KIT
CIRCUIT BREAKER 2A
FE4086
31508
in Pos. 1
7277-2-2
D 436-37SPLICE
1
1
1
1
3
1
4
2
3
5
OPTION
FUEL FLOW INDICATOR
0.085
0.114
Die Gültigkeitszuordnung
von Version zu
dem jeweiligen Fertigungsauftrag
zu entnehmen.
Zuordnung links / rechts wird mit
*/* in allen Feldern angegeben.
04
03
02
01
Ver. Bezeichnung
Nr.: Änderung/Mod. Nr.: Datum Name
Letzte Bearbeitung:
Datum Name
Bearb.:
Gepr.:
Mstab
SI.-Klasse
Oberflächenschutz
Projektion
Freimaßtoleranz
Oberfläche
Schutzvermerk nach DIN 34 beachten.
EDV-Kennung:
auf
Blatt von
Schwarze Heide 21
46569 Hünxe, Germany
Gepr.:
Flugzeugbaureihe
ist der Bauakte bzw.

Table of Contents