EasyManua.ls Logo

FARFISA INTERCOMS ECHOS - Page 209

FARFISA INTERCOMS ECHOS
236 pages
Print Icon
To Next Page IconTo Next Page
To Next Page IconTo Next Page
To Previous Page IconTo Previous Page
To Previous Page IconTo Previous Page
Loading...
207
(MT11 - Gb2012)
Si 46MO/2
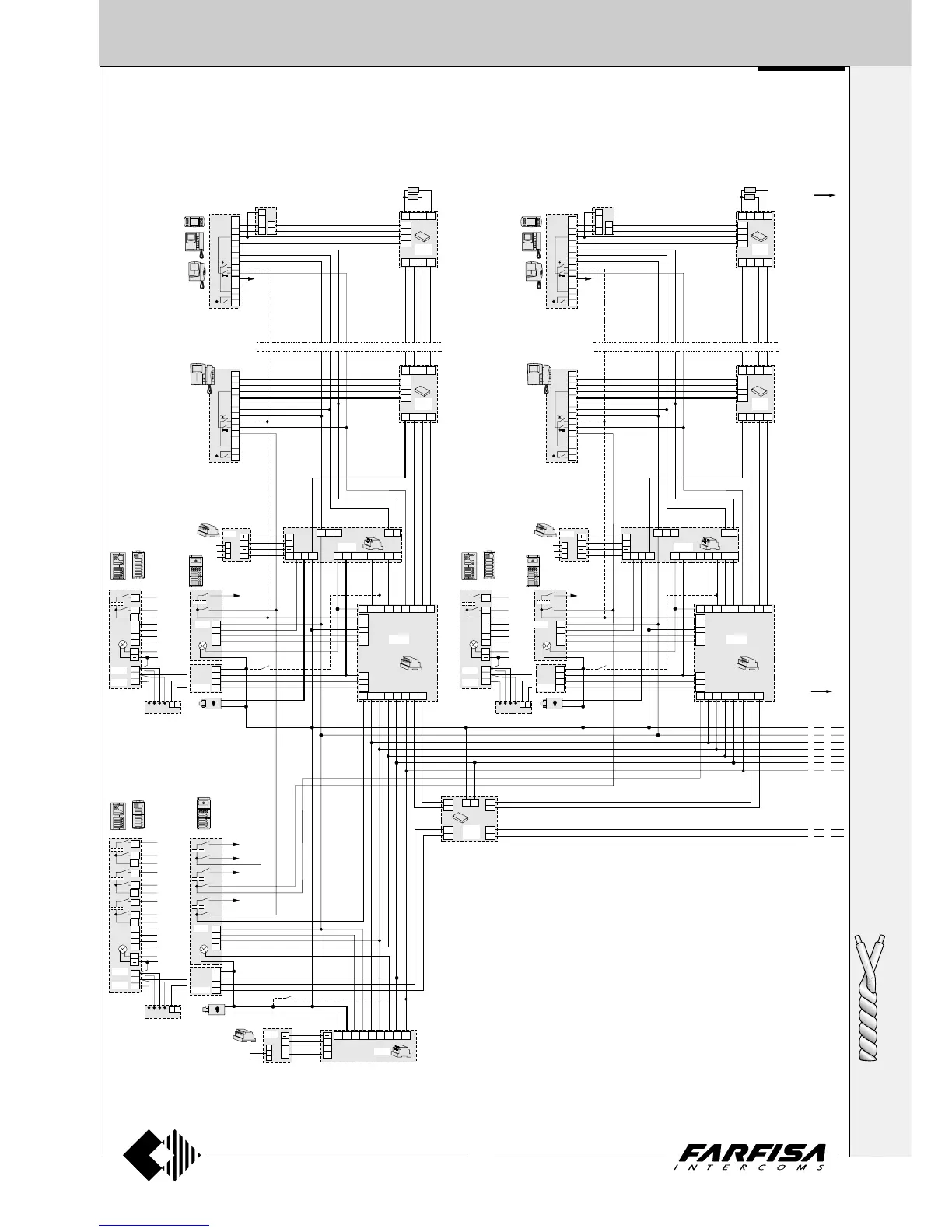
VIDEO INTERCOM SYSTEM WITH SECONDARY VIDEO STATIONS AND 1 MAIN COMMON VIDEO STATION
(multiple entrance)
4+1
INTERCOMS *
7+1
VIDEOINTERCOMS
“A” “B”
PA PA
10a
9a
8a
10a
9a
8a
“C-D-..”
230V
127V
0
F F
S S3+ 3+
1282E 1282E
1282E
I
A
SE
SE
SE
1 1
5 57a 7a12 1211 117 710 10
9 98 8
6
2
12a
11a
6
2
12a
11a
PA
4 47 7
3D 3D
I I
xn(C)
x1(C)
xn(B)
xn(A)
xn(A) Xn(B)
1281 1281
1273TV 1273TV
1281
“C-D-..”
4 (C)
8
X
Y
F
H
1
2
3
4
5
9M
9R
PC
P
1C
8
X
Y
F
H
1
2
3
4
5
9M
9R
PC
P
1C
H
IV
H
IV
A A
IV
A
H
A A
1D 1D
2D 2D
Xn(A) Xn(B)
4
3
2
1
4
3
2
1
4
3
2
1
P
P P
P
P
P
P P
P
P
C
C C
C
C
4
3
2
1
4
3
2
1
S F 3+ 3D C+ 2 X H 5
4
3
2
1
DV2D
DV4D
DV2D
DV4D
DV2D
DV4D
DV2D
DV4D
Y Y
Y Y
Y Y
Y Y
H H
H H
H H
H H
F F
F F
F F
F F
X X
X X
X X
X X
2x
75
2x
75
X1
Y1
F
H
X1
Y1
F
H
X1
Y1
F
H
X1
Y1
F
H
MD41D
MD41D
MD41D
V
V V
CV01
CV01 CV01
M
M M
F
F F
H
H H
M
H
V
M
H
V
M
H
V
Y
Y Y
X
X X
A
A A
DV2D
DV4D
Y
X
Y
X
Y1
X1
HF
X2
Y2
4 4
3 312b 12b11b 11b10b 10b7b 7b8b 8b9b 9b
F
H
Y
X
F
H
Y
X
F
H
Y
X
Mody
Matrix
Profilo
MD30
MAS4.
PL4.P
230V 230V
127V 127V
00
MD30 MD30
PL4.P PL4.P
Mody Mody
Matrix Matrix
Profilo Profilo
MAS4.
MAS4.
125
C+
X
H
125
C+
X
H
X
Y
X
Y
F
8
V
M
F
8
V
M
CV03 CV03
ECHOS
EXHITO
COMPACT
ECHOS
EXHITO
COMPACT
8
V
M
F
H
1
2
3
4
5
9M
9R
PC
P
1C
8
V
M
F
H
1
2
3
4
5
9M
9R
PC
P
1C
STUDIO STUDIO

Table of Contents

Related product manuals