EasyManua.ls Logo

FARFISA INTERCOMS ECHOS - Page 208

FARFISA INTERCOMS ECHOS
236 pages
Print Icon
To Next Page IconTo Next Page
To Next Page IconTo Next Page
To Previous Page IconTo Previous Page
To Previous Page IconTo Previous Page
Loading...
206
(MT11 - Gb2012)
Si 46MO/2
4+1
INTERCOMS *
7+1
VIDEOINTERCOMS
VIDEO INTERCOM SYSTEM WITH SECONDARY VIDEO STATIONS AND 1 MAIN COMMON VIDEO STATION
(multiple entrance)
INTERNAL STATIONS
ECHOS series EXHITO series COMPACT series STUDIO series
... EH9100CT/CW ... EX3100C ... KM8100W ... ST7100CW
EH9160CT/CW EX3160C KM8600W ST7100W
... 9083 EX3160 KM8800W ... ST720W
... WA9100T/W ... WB3160 ... WB8600 ... WB7100
... TA9160 ... TA3160 ... 8083 ... WB700
... CV03 ... CV03 ... CV03 ... TA7100
... TA700
EXTERNAL DOOR STATIONS
PROFILO series MATRIX series MODY series
... PL71÷PL73 ... MA71÷MA73 ... MD72÷MD74
1+X PL81÷PL89 ... MAS61÷MAS63 (
1
) 1+X MD82÷MD812
1+X PL91÷PL99 * 1+X MA91÷MA93 * 1+X MD92÷MD912 *
1+X PL40PC÷PL42PC 1+X MAS42C-MAS43C 1+X MD10÷MD124
PL40P÷PL42P MAS42-MAS43 1+X MD41D
... PL21÷PL228 ... MAS22-MAS24 1+X MD30
... PL20, PL50 ... MAS20 ... MD21÷MD228
... CV01 ... CV01 ... MD20, MD50
VARIOUS ARTICLES
... DV2D-DV4D Video distributors
1+X 1281 Power supply
1+X 1282E Timer
X 1273TV Exchanger
1+X PA ** Door release button (optional)
1+X SE ** Electric door lock (12Vac-1A)
common of buttons 1 and
2
to separate the common of
buttons cut here
common of buttons 3 and
4
The main entrance push-button panel must
have separate common terminals. One common
terminal for each secondary door station. Buttons of
the Mody series can be divided into 2-button groups.
The common terminals of push-buttons Profilo and
Matrix series can be separated only module by
module.
Mody series button module
... Refers to number of users.
X Refers to number of secondary door stations.
(
1
) Or MA61÷MA63.
* The rain shelter is used in the place of the back box and hood cover.
** Articles not supplied by ACI Farfisa.
Working instructions.
As the basic system described on page 218, with the following variations:
- The audio-video functions and door lock opening are automatically switched to the door
station which has made the call (or control switching ON) and remain in this state until
a call from another entrance is received.
- Services to secondary door stations are independent and can be operated at the same
time.
Notes
- For audio compatibility we do not suggest to connect door stations MODY series with
internal devices ECHOS series.
- If the control switching ON is necessary, connect terminal 4 of the timer (dashed wire).
- For the connection of name plate lamps read notes 6, 7 and 8 of the installation
instructions on page 146.
- For wires dimensioning and video connection refer to the installation instructions and
table on pages 146 and 149.
- For other types of push-button panels see the general catalogue.
Connection of 1281E power supply-timer in-
stead of 1281 plus 1282E.
By adding 1281E to the schematics on page 207
instead of 1281 plus 1282E, the system working will
modify as follows:
- switching-OFF at the end of the timing only.
Power supply-timer of the secondary entrance
Power supply-timer of the main entrance
Control switching ON deactivation
To deactivate the monitoring function
during the conversation and to keep it
only when the system is in standby, it is
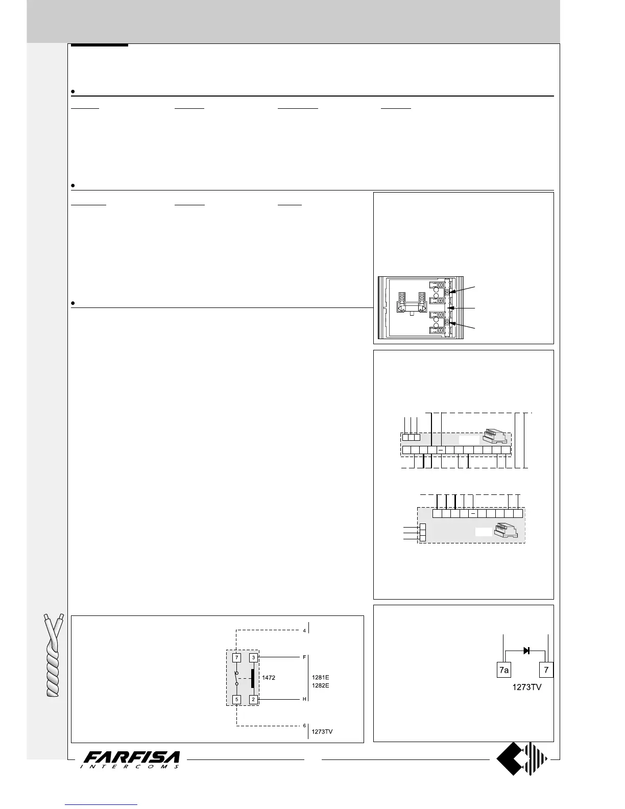
necessary to install a relay (type 1471 or
1472) and connect it as shown on the
diagram.
to the video-
intercoms
Connection of two door locks, of which the
secondary is always activable, in a system with
multiple entrance
For this option it is necessary to
install a diode (100V-1A; type
1N4007) between terminals 7
(cathode) and 7a (anode) of every
secondary exchanger. The diode
allows to activate also the door
look of your own entrance when the door look of the
main entrance is activated. On the contrary when the
door lock of your own entrance is activated the door
look of the main entrance is not activated.
230V
127V
0
1281E
F
SH3+ X 5
C+
4
230V
127V
0
1281E
5
C+
X
H
F
S3+
A
4

Table of Contents

Related product manuals