EasyManua.ls Logo

FARFISA INTERCOMS ECHOS - Page 43

FARFISA INTERCOMS ECHOS
236 pages
Print Icon
To Next Page IconTo Next Page
To Next Page IconTo Next Page
To Previous Page IconTo Previous Page
To Previous Page IconTo Previous Page
Loading...
41
(MT11 - Gb2012)
EXTERNAL DOOR STATIONS
1+1
INTERCOMS *
4+1
VIDEOINTERCOMS
M
O
D
Y
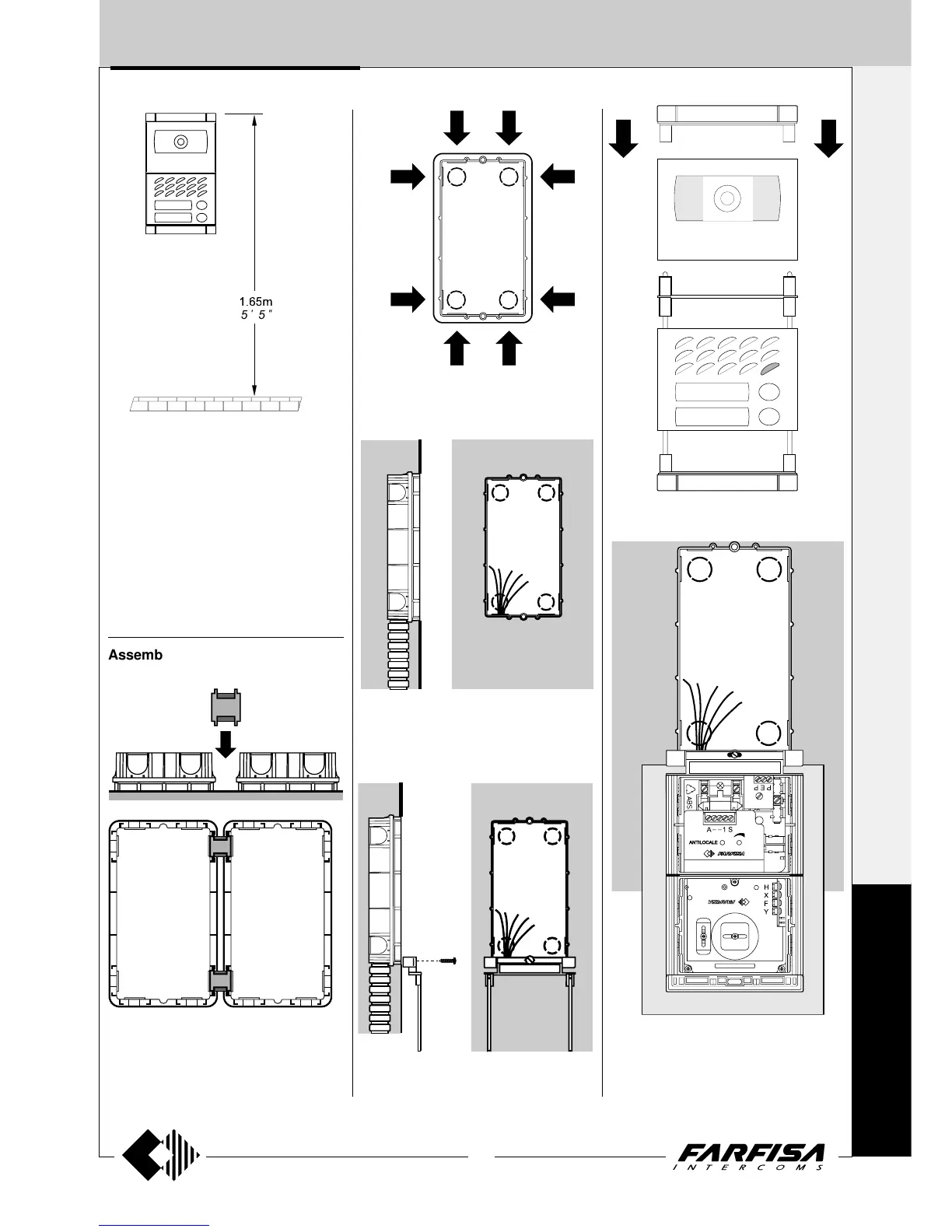
Place the push-button panel back box at a
height of about 1.65m from the floor keeping
the front edges flush-mounted and vertical to
the finished plaster.
Position the camera in such a way that
sunlight or other direct or reflected light
sources with high intensity do not hit the
camera lens.
Insertion of cable bush between back boxes.
The cable bushes must be inserted before
brickwork.
Openings for cables.
Flush mounting and cables placing.
Mounting of button module.
Lower fixing of the module frame.
(a)
Lower fixing of the module frame on back box.
It is advised to insert a protection (a) between
panel and wall while fixing.
aaaaaaaaaa
5
'
5
"
Assembling modules side by side

Table of Contents

Related product manuals