EasyManua.ls Logo

Franke Mythos - Page 129

Franke Mythos
148 pages
Print Icon
To Next Page IconTo Next Page
To Next Page IconTo Next Page
To Previous Page IconTo Previous Page
To Previous Page IconTo Previous Page
Loading...

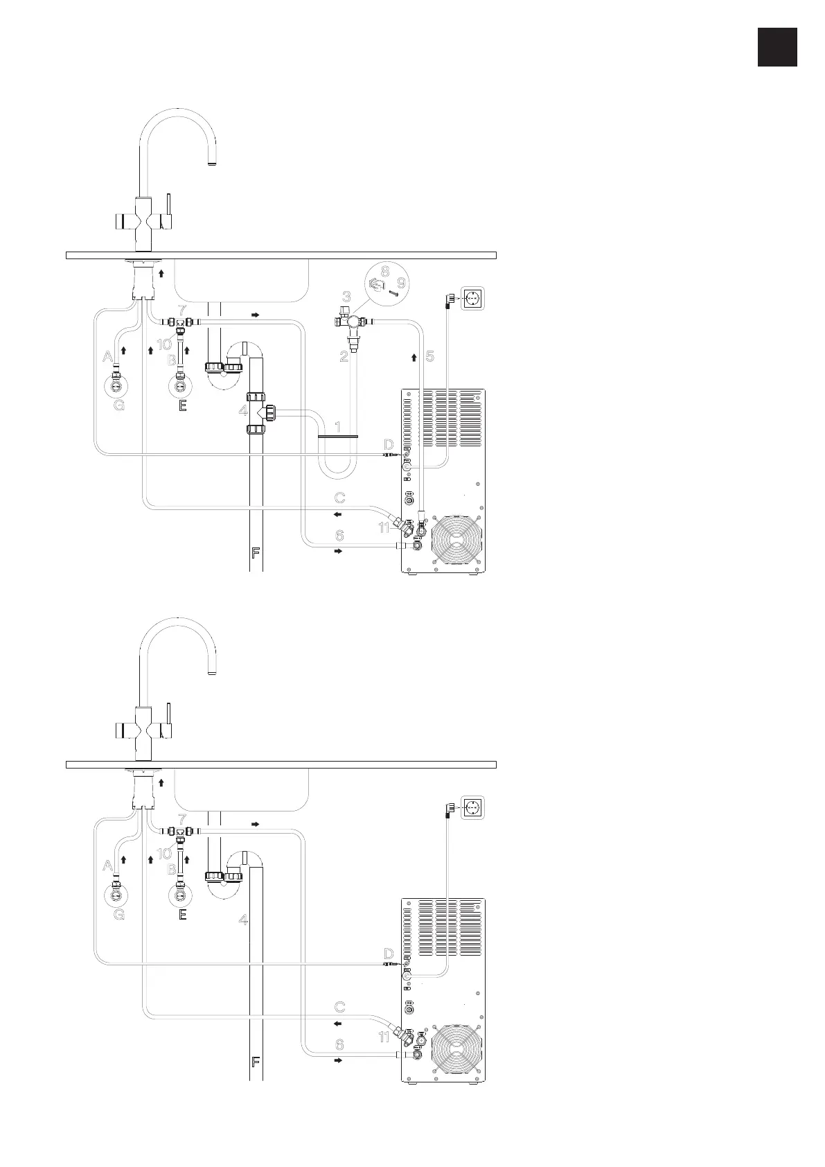
Mythos Water Hub All-in-One
E
G
3
7
A
B
C
D
F
1
2
4
5
6
8
9
11
10
A Agua caliente del grifo
B Agua fría del grifo
C Agua acondicionada del grifo
D 
E 
agua fría
F 
G 
sanitaria
1 Lazo

3 
entrada/salida
4 Drenaje en T
5 

6 

7 Pieza en T 3/8
8 

 
11 Adaptador de vástago ASA

Mythos Water Hub Carbonatada
E
G
7
A
B
C
D
F
4
6
11
10
ES

Table of Contents

Related product manuals