EasyManua.ls Logo

Franke Mythos - Page 57

Franke Mythos
148 pages
Print Icon
To Next Page IconTo Next Page
To Next Page IconTo Next Page
To Previous Page IconTo Previous Page
To Previous Page IconTo Previous Page
Loading...
57
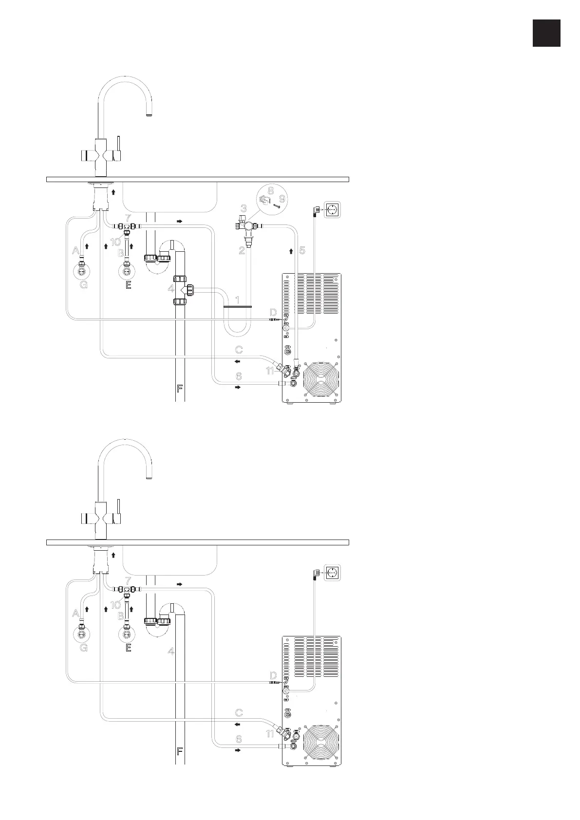
Mythos Water Hub - All in One
E
G
3
7
A
B
C
D
F
1
2
4
5
6
8
9
11
10
A Eau chaude du robinet
B Eau froide du robinet
C 
D 
E 
froide
F 
drainage
G 
chaude
1 Attache

3 

4 Drainage du joint en T
5 

6 

7 Pièce en T 3/8
8 

 
11 
Mythos Water Hub - Sparkling
E
G
7
A
B
C
D
F
4
6
11
10
FR

Table of Contents

Related product manuals