EasyManua.ls Logo

Fujitsu ARHG12LLTB

Fujitsu ARHG12LLTB
19 pages
To Next Page IconTo Next Page
To Next Page IconTo Next Page
To Previous Page IconTo Previous Page
To Previous Page IconTo Previous Page
Loading...
En-16
9. OPTIONAL PARTS
]
WARNING
•
Regulation of cable differs from each locality, refer in accordance with local rules.
This air conditioner can be connected with the following optional kits. Refer to each
installation manual for the method of installing optional parts.
• Wiredremotecontroller
• Simpleremotecontroller
• Externalconnectkit
• Remotesensorunit
• IRReceiverunit
• Autolouvergrille
9.1. Wired remote controller (Simple remote controller)
Pleasereferto[6.ELECTRICALWIRING]and[7.REMOTECONTROLLERSETTING].
9.2. External input and external output
Connection methods
Wiremodication:
Useatooltocut offtheterminal onthe endof the
wire, and then remove the insulation from the cut
end of the wire.
Connectthewirewithconnectingwirewithsolder.
Important:
Be sure to insulate the connection between the
wires.
• Connectionterminals
Outputterminal(CN103)
InputNoVoltageterminal(CN102)
• Wiringarrangement
Binder(Medium/Accessories)
Bind with this cable.
]
1
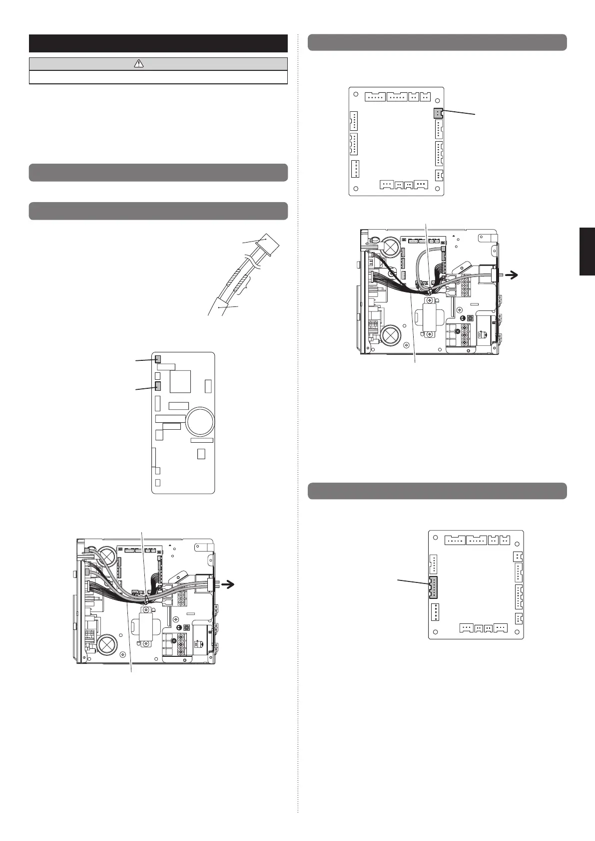
9.3. Remote sensor (Optional parts)
Connection method
• Connectionterminals
Remote sensor
terminal(CN8)
• Wiringarrangement
Binder(Medium/Accessories)
Bind with this cable.
• Removetheexistingconnectorandreplaceitwiththeremotesensorconnector(ensure
thatthecorrectconnectorisused).
• Theoriginalconnectorshouldbeinsulatedtoensurethatitdoesnotcomeintocontact
with other electrical circuitry.
Settingforroomtemperaturecorrection
When a remote sensor is connected, set the function setting of indoor unit as indicated
below.
• SetFunctionNumber“30”(Coolingroomtemperaturecorrection)to“01”
• SetFunctionNumber“31”(Heatingroomtemperaturecorrection)to“01”
1
9.4. IR Receiver Unit (Optional parts)
Connection method
• Connectionterminals
Receiver unit
terminal(CN13)
Optionalparts
Externalinput/
output wire
Insulated
connection
Cable
(Fieldsupply)
9374815173-04_IM.indb 16 9/21/2011 1:45:28 PM

Related product manuals