EasyManua.ls Logo

Fujitsu ARHG12LLTB

Fujitsu ARHG12LLTB
19 pages
To Next Page IconTo Next Page
To Next Page IconTo Next Page
To Previous Page IconTo Previous Page
To Previous Page IconTo Previous Page
Loading...
En-17
• Wiringarrangement
Binder(Medium/Accessories)
Bind with this cable.
• Use7pinsforreceiverunitcable.
•
Atrst,connectthereceiverunitcabletotheReceiverunitterminal(CN13).
]
1
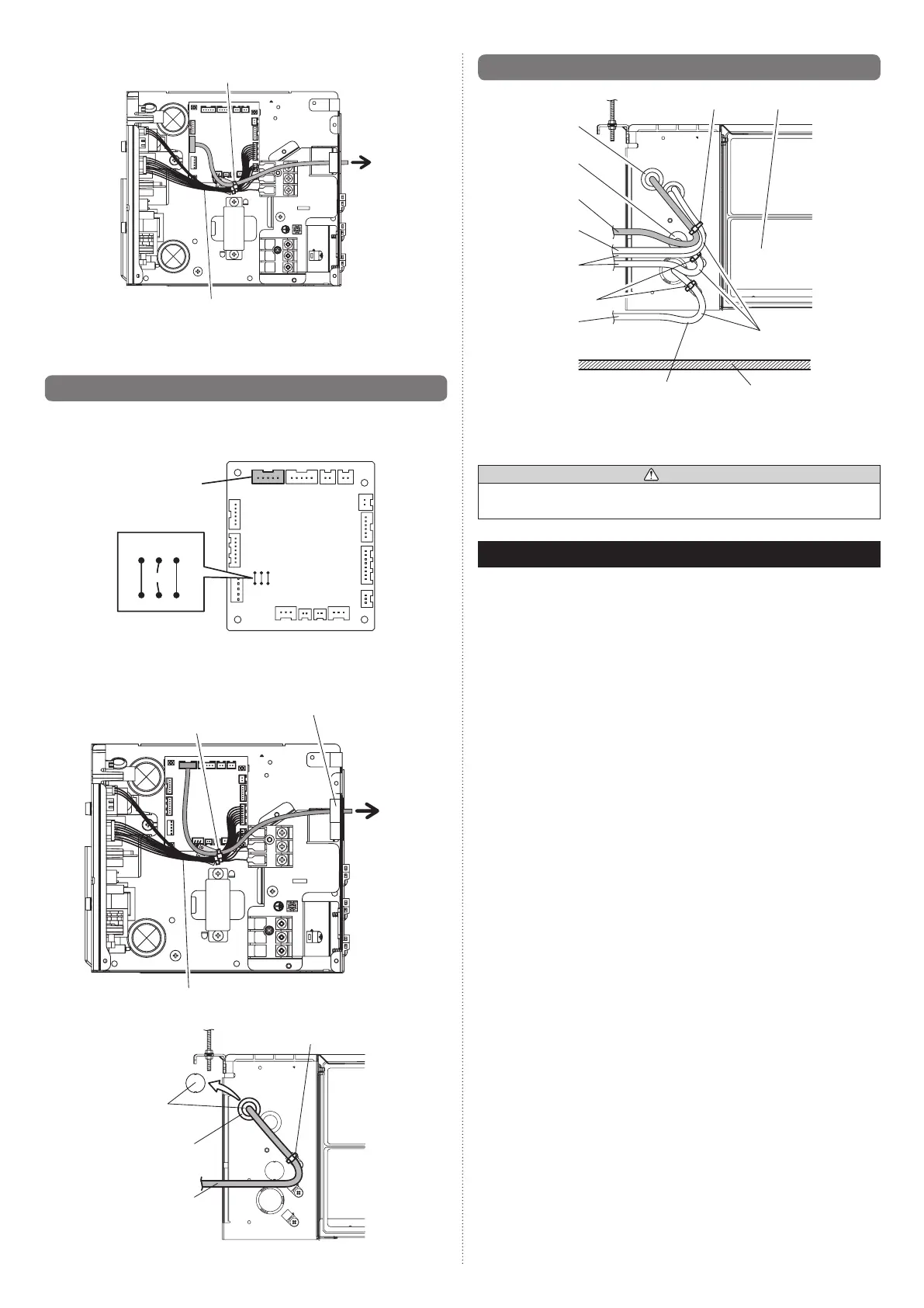
9.5. Auto louver grille (Optional parts)
Connection method
• Connectionterminalandjumperwires
Auto louver grille
terminal(CN11)
JM3
JM2
JM1
Jumperwires
• CutJumperwireJM2
• Wiringarrangement
Binder(Medium/Accessories)
Bushing(Accessoryofoptionalparts)
Bind with this cable.
Auto louver grille cable
Bushing(Accessory
ofoptionalparts)
Binder(Medium/Accessories)
Openingthis
knockout hole
]
1
9.6. Optional parts cable binding
Auto louver
grille cable
Remote controller
cable
Otheroptional
parts cables
Powersupply
cable
Avoid touching the
ceiling with the wiring.
*Useanaccessoryofindoorunitoroptionalpartsforbinder.
**Useanaccessoryofoptionalpartsforbushing.
Ceiling
Avoid covering the air
inlet with the wirings.
Binders*
Air inletBinder*
Knockout hole
Bushing**
• Donotbindthepowersupplycableandothercablestogether.
CAUTION
• To protect the cable insulation after opening a knockout hole, remove any burrs from
the edge of the hole.
10. CUSTOMER GUIDANCE
Explainthefollowingtothecustomerinaccordancewiththeoperatingmanual:
(1)Startingandstoppingmethod,operationswitching,temperatureadjustment,timer,air
owswitching,andotherremotecontrolleroperations.
(
2)Airlterremovalandcleaning,andhowtousetheairlouvers.
(3)Givetheoperatingandinstallationmanualstothecustomer.
(4)Ifthesignalcodeischanged,explaintothecustomerhowitchanged(thesystem
returnstosignalcodeAwhenthebatteriesintheremotecontrollerarereplaced).
*(4)isapplicabletousingwirelessremotecontroller.
9374815173-04_IM.indb 17 9/21/2011 1:45:28 PM

Related product manuals