EasyManua.ls Logo

Fujitsu ASU12RLF1 - 8. Electronic Expansion Valve Control; 9. Test Operation Control

Fujitsu ASU12RLF1
328 pages
Print Icon
To Next Page IconTo Next Page
To Next Page IconTo Next Page
To Previous Page IconTo Previous Page
To Previous Page IconTo Previous Page
Loading...
¢
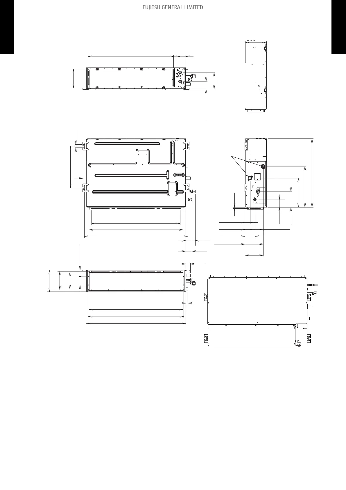
Model: ADUH18LUAS1
Unit: in (mm)
Rear view
View A
Top view
Side view
Front view
Bottom view
Drain port
2 (51)
30-1/2 (774)
6-7/8 (174)
2-13/16 (71)
6 (152)
3-7/16
(87)
2-3/16
(56)
33-7/16 (850)
36-3/4 (934)
3-15/16 (100) × 8 = 31-1/2 (800)
1-3/16 (30)
14-13/16 (377)
6-7/16
(163)
4-11/16 (119)
3-1/2 (89)
3-1/16 (78)
2-3/16 (55)
1-7/8 (47)
3/8 (10)
24-7/16 (620)
14-5/8 (371)
10-3/8 (264)
5-11/16
(144)
2-11/16
(69)
33-7/16 (850)
34 (864)
35-7/16 (900)
1-11/16 (43)
1-1/4
(31)
7-13/16
(198)
6-5/8
(168)
5-15/16
(151)
3-1/16
(78)
2-3/16 (55)
A
- 16 -
3-2. Slim duct type 3. Dimensions
MULTI-SPLIT TYPE
5-unit type
MULTI-SPLIT TYPE
5-unit type

Table of Contents

Other manuals for Fujitsu ASU12RLF1

Related product manuals