EasyManua.ls Logo

FULTON 60E - General Data

FULTON 60E
44 pages
Print Icon
To Next Page IconTo Next Page
To Next Page IconTo Next Page
To Previous Page IconTo Previous Page
To Previous Page IconTo Previous Page
Loading...
GFSE-Std-0499
5 5
GENERAL DATA
SECTION 5
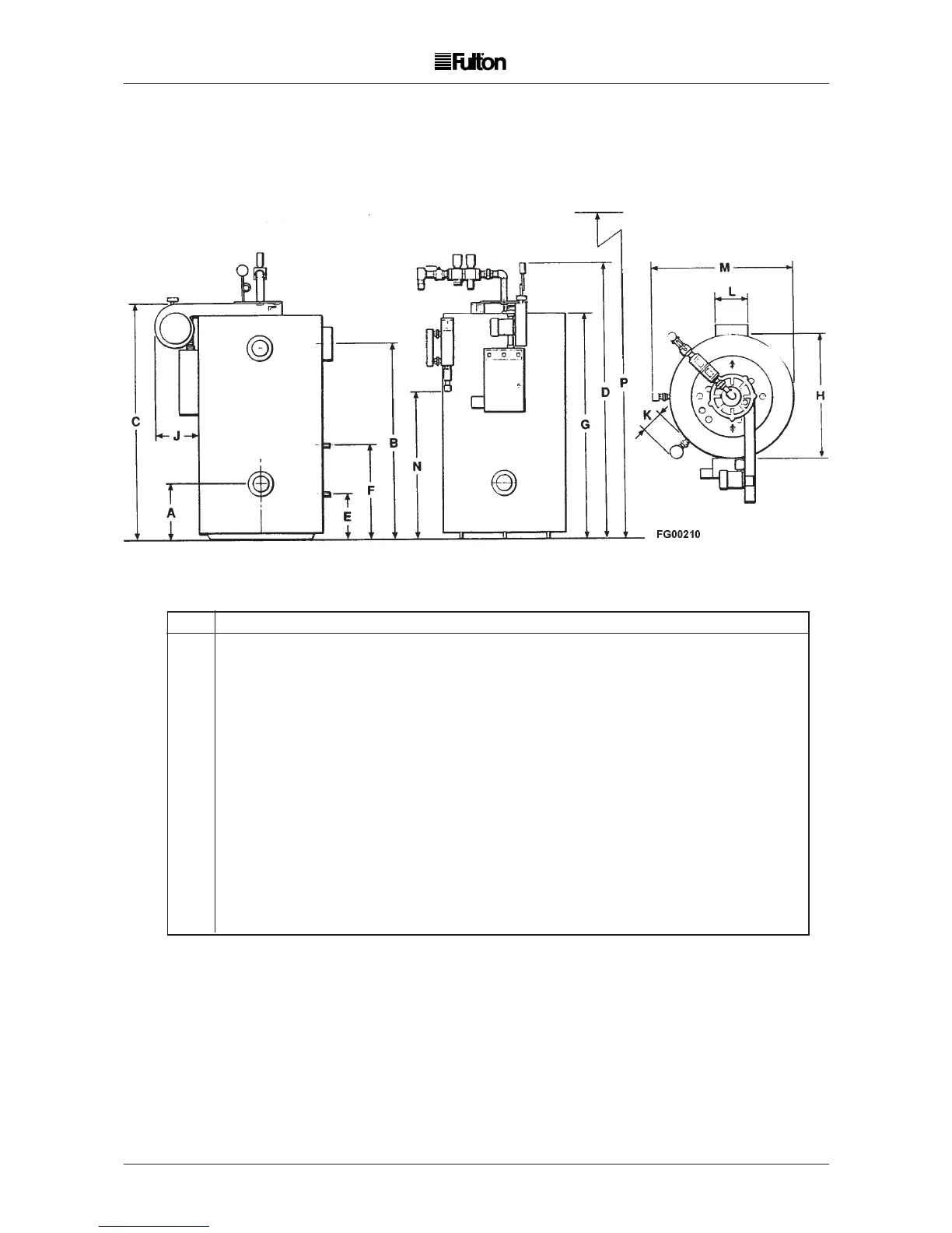
A B C D E F G H J K L MN P
6E 480 1295 1535 1960 380 840 1460 665 345 300 150 825 725 2000
8E 480 1395 1635 2060 380 840 1560 665 345 300 150 825 825 2100
10E 480 1445 1685 2110 380 840 1610 715 310 240 150 975 725 2150
15E 480 1570 1835 2260 380 840 1760 765 290 260 205 1025 875 2300
20E 510 1625 1955 2430 405 870 1840 985 415 250 255 1235 955 2500
30E 510 1850 2205 2690 405 870 2090 1175 420 250 305 1435 1205 2750
40E 510 1930 2290 2900 400 1095 2170 1390 470 250 305 1730 1285 2950
50E 510 1930 2290 2900 400 1095 2170 1390 470 250 305 1730 1285 2950
60E 510 2080 2440 3050 400 1095 2320 1390 470 250 305 1730 1435 3100
32
FIG. 20 BOILER DIMENSIONS
Note:-
Standard Working Pressure 6E - 30E, 8.6bar. 40E - 60E, 10.34bar.
15mm Water Sample point located on Water Column if fitted.
Gas Train can rotate through 360
O
.
dimensions mm

Related product manuals