EasyManua.ls Logo

FULTON PHW 2000 - Horizontal Vent Termination

FULTON PHW 2000
84 pages
Print Icon
To Next Page IconTo Next Page
To Next Page IconTo Next Page
To Previous Page IconTo Previous Page
To Previous Page IconTo Previous Page
Loading...
Questions? Call (315) 298-5121, or visit us online at www.fulton.com
SECTION 2 PHW-IOM-2013-0214 INSTALLATION
2-25
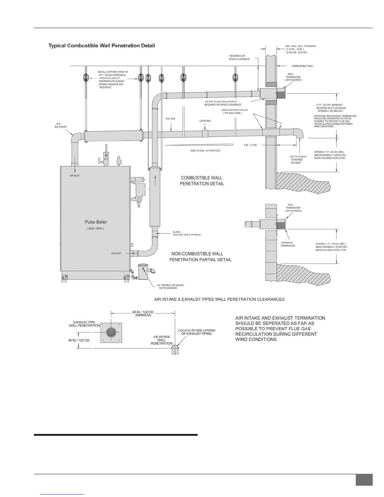
FIGURE 19 - HORIZONTAL INSTALLATION WALL PENETRATIONS
intake and vent pipes are passed, then tighten securely.
They will prevent the intake and vent pipes from being
pushed or pulled.
Horizontal Vent Termination
Adhere to the following for horizontal vent terminations:
1. Join the vent termination to the vent pipe outside the
wall. Use the same joining procedures for vent pipe and
ttings.
2. Ensure the termination of the vent system is at least 12
above the nished grade, or at least 12 above normal
snow accumulation level (for applicable geographical
areas). Refer to Figure 19. The termination of the vent
system shall not be located in tra c areas such as
walkways, adjacent buildings, openable windows and
building openings unless the venting system is at least

Table of Contents

Related product manuals