EasyManua.ls Logo

FULTON VSRT 50 - Page 43

FULTON VSRT 50
91 pages
Print Icon
To Next Page IconTo Next Page
To Next Page IconTo Next Page
To Previous Page IconTo Previous Page
To Previous Page IconTo Previous Page
Loading...
INSTALLATION  2
Questions? Call (315) 298-5121, or visit us online at www.fulton.com
2-33
VSRT_IOM_2018-1213
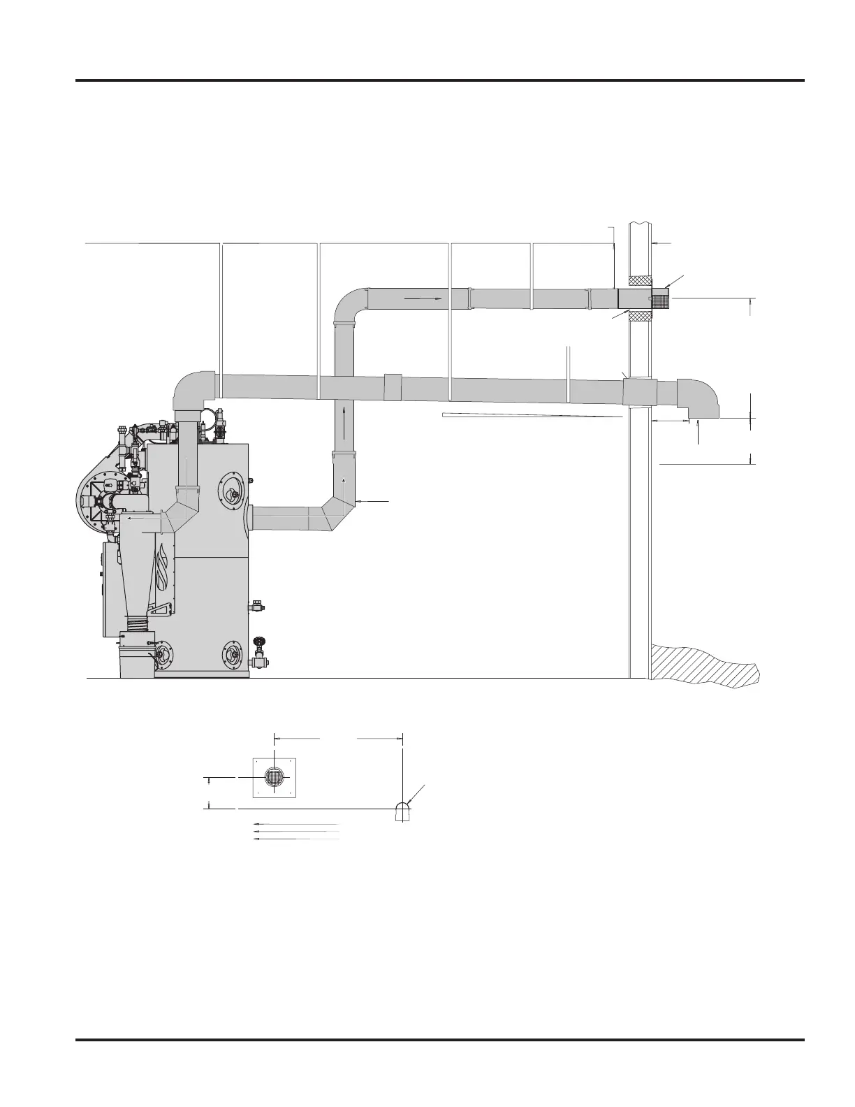
APPROVED EXHAUST
VENT MATERIAL
WALL
WALL TERMINATION
( WITH SCREEN )
6 IN / 15 CM
MIN
DO NOT PLACE INSULATION IN
REQUIRED AIR SPACE CLEARANCE
BAND SUPPORT
COLLAR
(TYP EACH SIDE)
90° ELBOW
SCREENED AIR INLET
EXHAUST PIPE
WALL PENETRATION
48 IN. / 122 CM.
(MINIMUM)
10 FEET
(MINIMUM)
AIR INTAKE
WALL PENETRATION
WIND DIRECTION
LOCATE INTAKE
UPWIND OF
EXHAUST PIPING
AIR INTAKE & EXHAUST PIPES WALL PENETRATION CLEARANCES
CAUTION:
AIR INTAKE AND EXHAUST TERMINATION SHOULD BE
SEPARATED AS FAR AS POSSIBLE TO PREVENT FLUE GAS
RECIRCULATION DURING DIFFERENT WIND CONDITIONS
NOTE:
MAINTAIN MINIMUM 9"/22.86 CM AIR SPACE
CLEARANCES TO COMBUSTABLES, WIRES AND INSULATION
4 FT / 122 CM ( MINIMUM )
BETWEEN INLET & EXHAUST
OPENING ( SEE BELOW )
AIR INTAKE AND EXHAUST
TERMINATION SHOULD BE
SEPERATED AS FAR AS POSSIBLE
TO PREVENT FLUE GAS
RECIRCULATION DURING
DIFFERENT WIND CONDITIONS.
OPENING 1 FT / 30 CM ( MIN )
ABOVE NORMALLY EXPECTED
SNOW ACCUMULATION LEVEL
RISE TO RUN: 1/4" PER FOOT
Figure 17 - Side Wall Penetration Details
MIN 4FT
( 122 CM )
APPROVED EXHAUST
VENT MATERIAL
MIN 4FT / 122 CM
ABOVE AIR
INTAKE PIPING
SCREENED INLET
EXHAUST OUTLET
IF SNOW ACCUMULATION
IS APPLICABLE, OPENING TO BE
1 FT. / 30 CM ( MIN. ) ABOVE
THIS NORMALLY EXPECTED LEVEL.
TYPICAL ROOF PENETRATIONS
( SUGGESTED TERMINATION CONFIGURATIONS )
EXHAUST STACK IS DOWNWIND
OF AIR INTAKE OPENING
VSRT
BOILER
( SIDE VIEW )
NOTE:
AIR INTAKE AND EXHAUST TERMINATION SHOULD BE
SEPARATED AS FAR AS POSSIBLE TO PREVENT FLUE GAS
RECIRCULATION DURING DIFFERENT WIND CONDITIONS.
AIR INLET
NOTE:
1.) When using horizontal runs follow a 1/4" per foot rise to run ratio
2.) Maintain minimum 9" / 22.86 cm air space clearances to combustables,
wires and insulation
3.) Install support straps at 5 FT / 152 CM horizontal intervals and at elbows

Related product manuals