EasyManua.ls Logo

GALI A-45 - Page 27

GALI A-45
39 pages
Print Icon
To Next Page IconTo Next Page
To Next Page IconTo Next Page
To Previous Page IconTo Previous Page
To Previous Page IconTo Previous Page
Loading...
-
-
-27--27-
11.5. - FRONT SECURING FLANGE11.5. - FRONT SECURING FLANGE
As well as As well as a great number of standardized flanges, GALI can deliver specific front a great number of standardized flanges, GALI can deliver specific front securing flanges for anysecuring flanges for any
application of its starters.application of its starters.
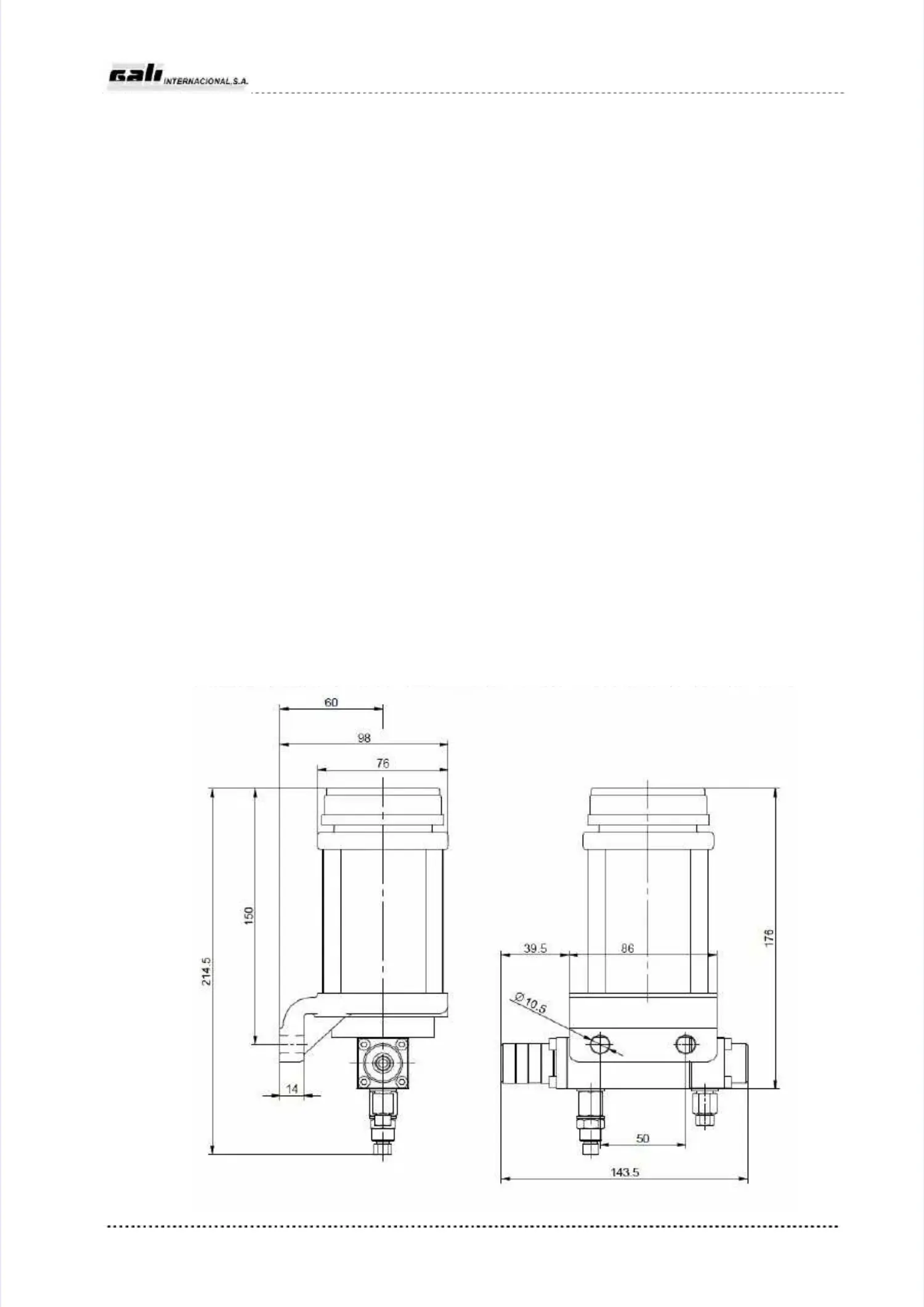
11.6. – SERVOLUBRICATOR SL6
11.6. – SERVOLUBRICATOR SL6
This servolubricator has been especially designeThis servolubricator has been especially designed to be d to be used with the GALI air used with the GALI air starters. Yet it starters. Yet it may also bemay also be
employed for the lubrication of employed for the lubrication of any kind of any kind of pneumatic circuit operating intermittently.pneumatic circuit operating intermittently.
Upon reception of a pneumatic signal, the pump of the Upon reception of a pneumatic signal, the pump of the servolubricator injects a certain quantity of oil into servolubricator injects a certain quantity of oil into thethe
correspondincorresponding inlet, which is g inlet, which is normally the feed air inlet of normally the feed air inlet of the equipment to be lubricated.the equipment to be lubricated.
The oil reservoir; not being pressurized, can be The oil reservoir; not being pressurized, can be refilled without isolating from the air main.refilled without isolating from the air main.
When actuating the servolubricator several times, the pump will be primed automatically. To ensure the oilWhen actuating the servolubricator several times, the pump will be primed automatically. To ensure the oil
enters the starter motor from enters the starter motor from its first operation, we recommend performing 4-5 feint starts at its first operation, we recommend performing 4-5 feint starts at maximum injectionmaximum injection
volume allowing the lube-pipvolume allowing the lube-pipe to fill-up. Thereafter, the e to fill-up. Thereafter, the injection volume has to be adjusted again to the desiredinjection volume has to be adjusted again to the desired
volume.volume.
The necessary oil quantity depends upon the starting frequency and duration and on the condition of the feedThe necessary oil quantity depends upon the starting frequency and duration and on the condition of the feed
air (degree of humidity, salinity and pollution). For a air (degree of humidity, salinity and pollution). For a starting duration of 0,5 to starting duration of 0,5 to 2 seconds, we would advise:2 seconds, we would advise:
-Type A15 starter: 0,4 cm-Type A15 starter: 0,4 cm
33
In case of infrequently used starting equipment or unfavourable starting conditions, the lubrication has to beIn case of infrequently used starting equipment or unfavourable starting conditions, the lubrication has to be
intensified, however.intensified, however.
The sevolubricator may be installed in The sevolubricator may be installed in any desired position, although we recommend its installation in any desired position, although we recommend its installation in a highera higher
place than the starter and possibly near to place than the starter and possibly near to same.same.
Adjustment:Adjustment:
This servolubricator has an adjusting screw and an external indicator showing the oil volume injected for eachThis servolubricator has an adjusting screw and an external indicator showing the oil volume injected for each
operating cycle. When turning the adjusting screw to the right, operating cycle. When turning the adjusting screw to the right, the infection volume will be increased, and whenthe infection volume will be increased, and when
turning it to the turning it to the left, the volume will be left, the volume will be reduced.reduced.
* Measurements in mm* Measurements in mm