EasyManua.ls Logo

Generac Power Systems HTS Wn - Page 19

Generac Power Systems HTS Wn
56 pages
Print Icon
To Next Page IconTo Next Page
To Next Page IconTo Next Page
To Previous Page IconTo Previous Page
To Previous Page IconTo Previous Page
Loading...
17
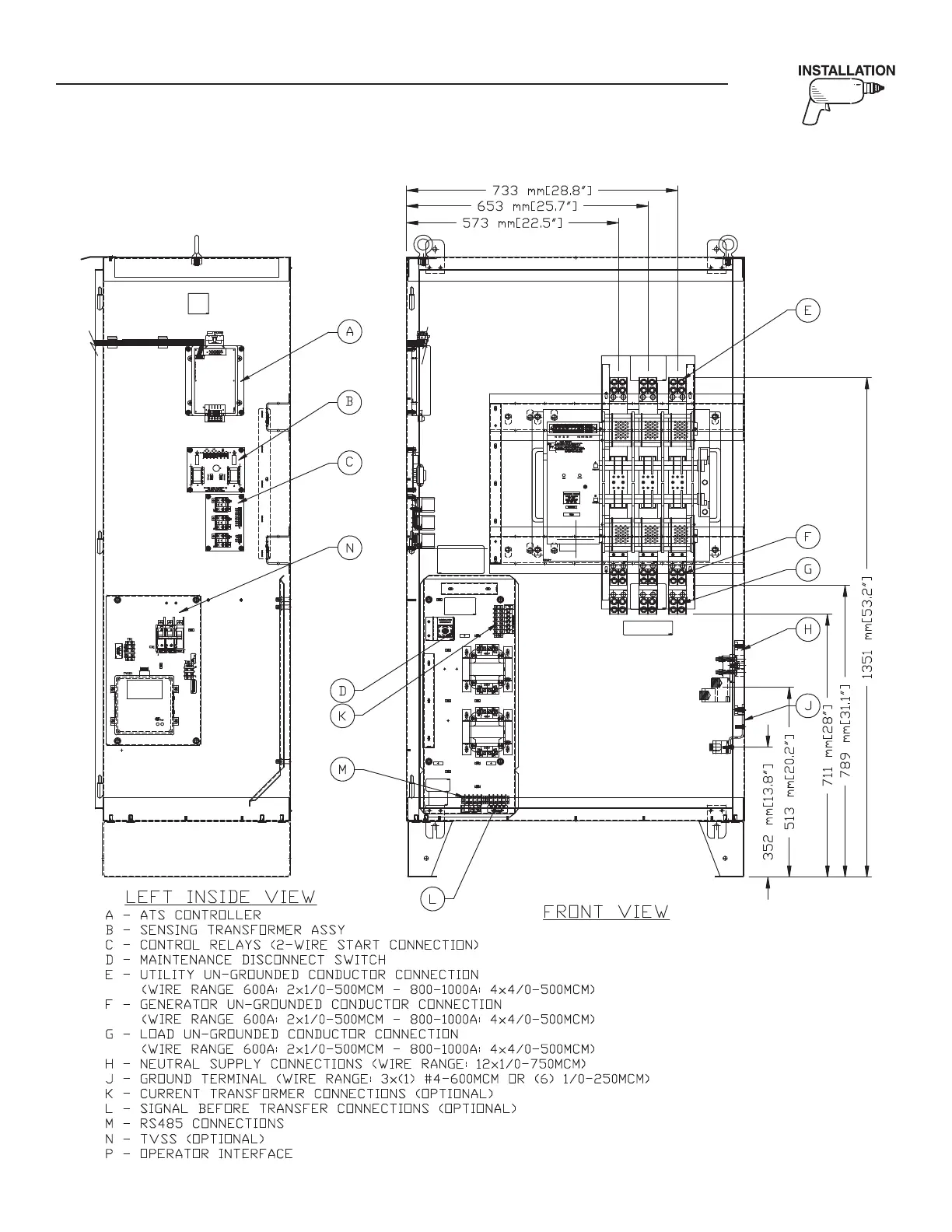
Section 6 — Mounting Dimensions (600 - 1000A, NEMA 12)
Drawing No. 0F6963-D

Related product manuals