EasyManua.ls Logo

Gree GMV-PD160W/NAB-M

Gree GMV-PD160W/NAB-M
133 pages
To Next Page IconTo Next Page
To Next Page IconTo Next Page
To Previous Page IconTo Previous Page
To Previous Page IconTo Previous Page
Loading...
6
DC Inverter Multi
VRF Service Manual
QSPEVDU
4.2 Operation Range
Model Range of outdoor temperature ( )
Cooling 10 (50 )~48 (118.4 )
Heating -20
(-4 )~27 (8 )
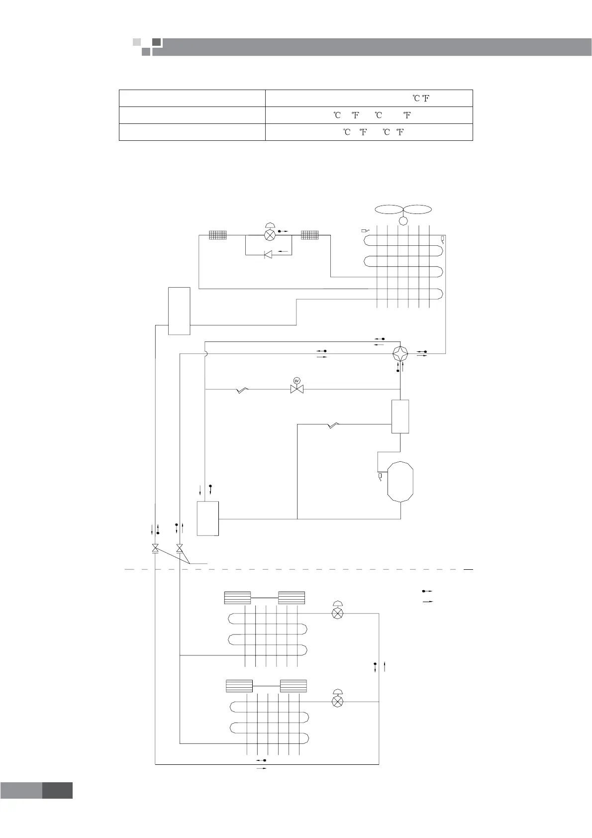
5 PIPING DIAGRAM
5.1 Heat Pump
Filter
Electronic expansion valve
Capillary
Electronic expansion valve
Heat exchanger with centrifugal fan
Indoor side
Stop valve
cooling
heating
Compressor
1-
way valve
Outdoor side
Oil separator
Capillary
Electricmagnetic valve
4-
way valve
Filter
M
Extra condenser
Heat exchanger
with axial flow fan
Heat exchanger with centrifugal fan
Electronic expansion valve
Accumulator
Receiver

Table of Contents

Other manuals for Gree GMV-PD160W/NAB-M

Related product manuals