EasyManua.ls Logo

Gree GMV-PD160W/NAB-M

Gree GMV-PD160W/NAB-M
133 pages
To Next Page IconTo Next Page
To Next Page IconTo Next Page
To Previous Page IconTo Previous Page
To Previous Page IconTo Previous Page
Loading...
30
DC Inverter Multi
VRF Service Manual
DPOUSPM
6.5 Installation and Debugging
6.5.1 Installation
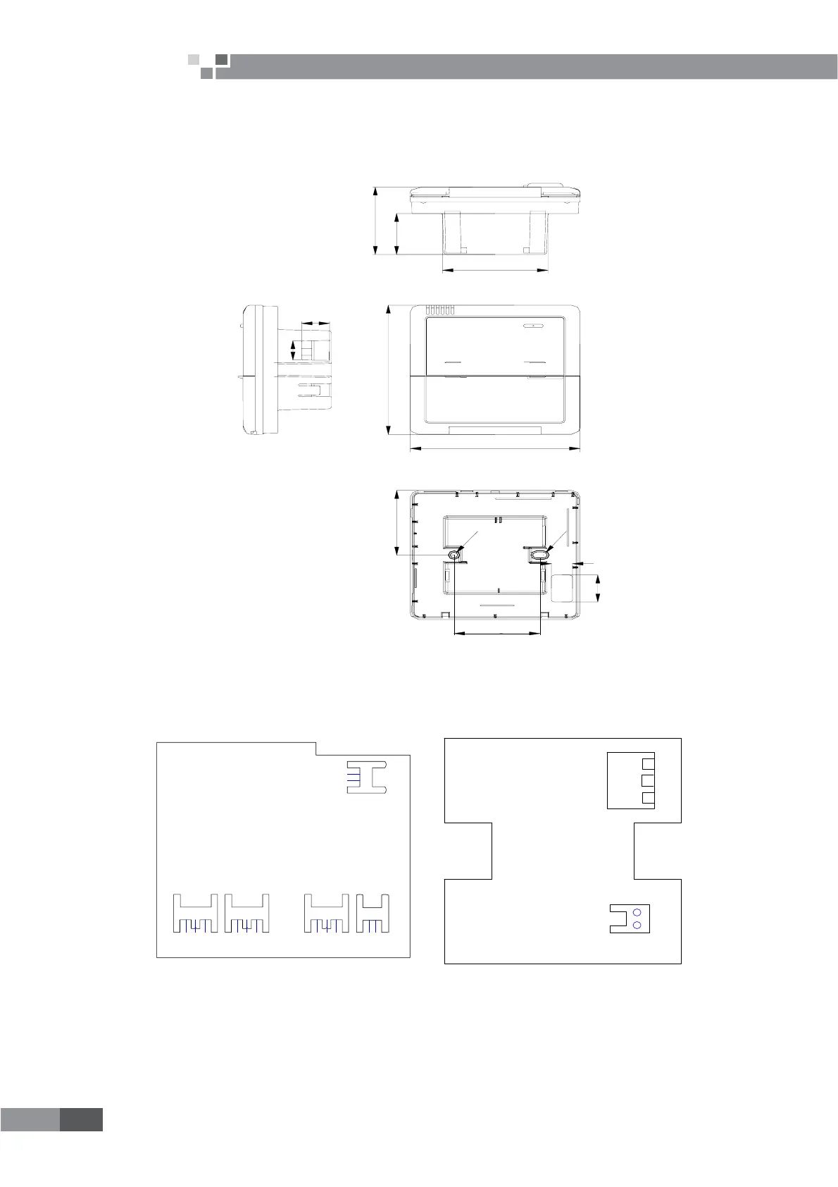
5.5.1.1 Installation Dimension Diagram
75
120
60
25
18
62
38
20
120
15
5
5
61
Fig.6.5.1 Installation Dimensions Diagram
6.5.1.2 Interfaces
See Fig.6.5.2 for the interfaces of the display board and see Fig.6.5.3 for the interfaces of the power
supply module.
GND
+9.8V
CN1
COM1 COM2 COM3 COM4
CN2CN3CN4CN5
AC-N AC-L
9.8V GND
CN4
CN1
Fig.6.5.2 Interfaces of the Display Board Fig.6.5.3 Interfaces of the Power Supply Module Board

Table of Contents

Other manuals for Gree GMV-PD160W/NAB-M

Related product manuals