EasyManua.ls Logo

Gree GMV-PD160W/NAB-M

Gree GMV-PD160W/NAB-M
133 pages
To Next Page IconTo Next Page
To Next Page IconTo Next Page
To Previous Page IconTo Previous Page
To Previous Page IconTo Previous Page
Loading...
64
DC Inverter Multi
VRF Service Manual
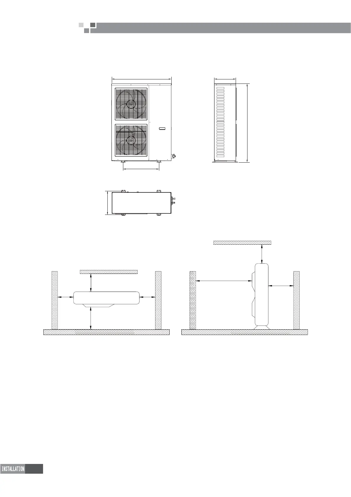
3.3 Dimensions Data
Appearance of GMV(L)-Pd100W/NaB-K,GMV(L)- Pd 120W/NaB-K,GMV(L)- Pd 140W/NaB-K,GMV(L)- Pd
160W/NaB-K,GMV- Pd 140W/NaB-M,GMV- Pd 160W/NaB-M
950
572
1250
378
340
3.4 Installation space requirements
˚500 ˚500
˚500
˚500˚2000
˚1000
˚2000

Table of Contents

Other manuals for Gree GMV-PD160W/NAB-M

Related product manuals