EasyManua.ls Logo

Greenlee 555BAT - Wiring Layout - General

Greenlee 555BAT
48 pages
Print Icon
To Next Page IconTo Next Page
To Next Page IconTo Next Page
To Previous Page IconTo Previous Page
To Previous Page IconTo Previous Page
Loading...
Greenlee Textron / Subsidiary of Textron Inc.
34
4455 Boeing Dr., Rockford, IL 61109-2988 815/397-7070
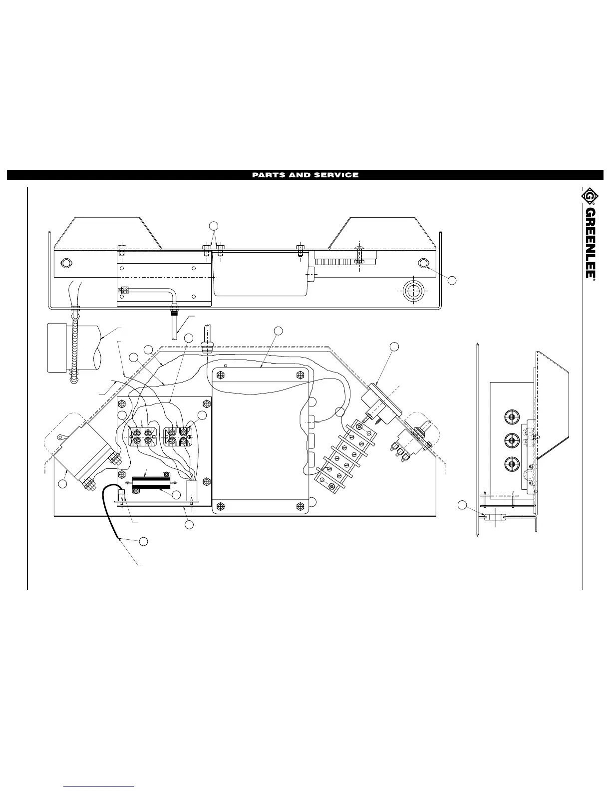
555BAT™ Battery-Powered Bender
42
85
87
86
WHITE MOTOR LEAD
BLACK MOTOR LEAD
1
2
LOAD
LINE
MOTOR
PENDANT SWITCH
RECEPTACLE
PENDANT SWITCH CORD
PENDANT SWITCH
51
48
3
4
BATTERY #2
BATTERY #1
11
38
40
20
11
BLACK
RED
SEE THE NEXT PAGE
FOR A COMPLETE
TERMINAL BLOCK
WIRING ILLUSTRATION
BLACK
RED
RED
89
R101
Q102 Q101
88 88
Wiring Layout—General

Related product manuals