EasyManua.ls Logo

Harmar Mobility AL625 - Step 5 Position the Trolley Assembly and Bolt It down

Harmar Mobility AL625
25 pages
Print Icon
To Next Page IconTo Next Page
To Next Page IconTo Next Page
To Previous Page IconTo Previous Page
To Previous Page IconTo Previous Page
Loading...
AL625 Page 11
REV: 1-24-12
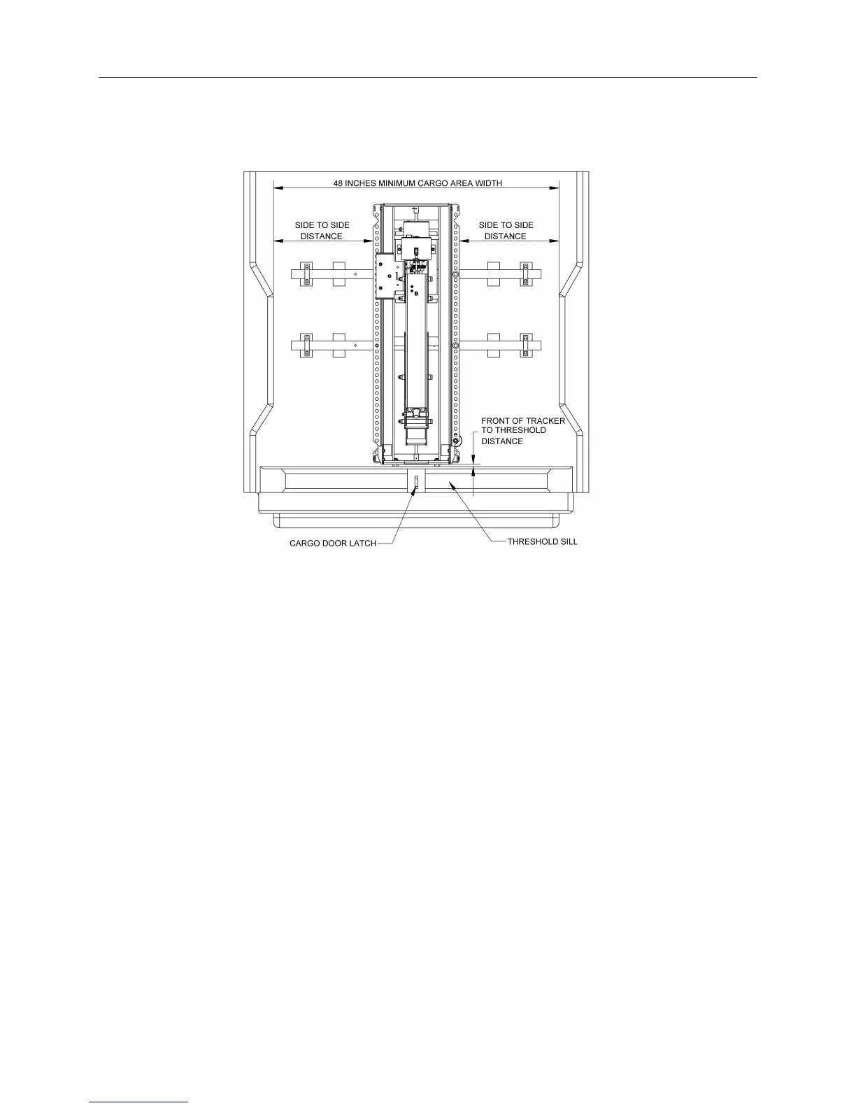
POSITION THE TROLLEY ASSEMBLY AND BOLT IT DOWN
Align the front of the Trolley Assembly as far rearward in the opening of the cargo area as possible. This is
important so that the Tracker PLATFORM ASSEMBLY will clear the vehicle’s bumper when operating.
Slide the trolley assembly on the mounting bars and adjust its position, aligning the holes in the Side mounting rails
with the holes in the mounting bars. Check the distance from the side mounting rails of the trolley assembly to the
sides of the cargo area, to make sure the trolley assembly is centered. To adjust the side-to-side distance, loosen the
3/8 nuts on the U-bolts and slide the trolley assembly & mounting bars to one side or the other.
Secure the side mounting rails to the mounting bars using the (4) 3/8-16 x 5/8” bolts; hand tighten only at this point.
Do one final check of the side-to-side alignment and distance to the threshold/sill, adjusting if needed, and then
tighten down all of the hex nuts on the U-bolts, and the 3/8 bolts on the mounting bars.

Related product manuals