EasyManua.ls Logo

Harmar Mobility AL625 - Step 3 Position the Trolley Assembly on the Mounting Bars

Harmar Mobility AL625
25 pages
Print Icon
To Next Page IconTo Next Page
To Next Page IconTo Next Page
To Previous Page IconTo Previous Page
To Previous Page IconTo Previous Page
Loading...
AL625 Page 9
REV: 1-24-12
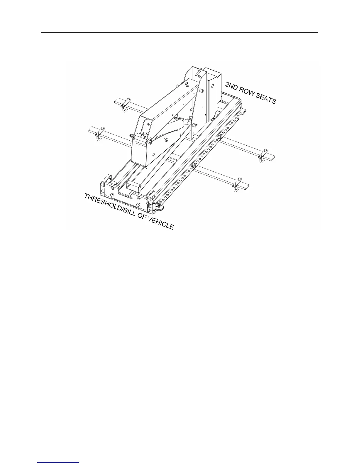
POSITION THE TROLLEY ASSEMBLY ON THE MOUNTING BARS
Place the trolley assembly into the vehicle, laying it on top of the mounting bars. Arrange the trolley assembly so it
is facing as shown in the figure below.
STEP 4

Related product manuals