EasyManua.ls Logo

Heatilator A36C - Design and Installation Considerations; Selecting Fireplace Locations

Heatilator A36C
40 pages
Print Icon
To Next Page IconTo Next Page
To Next Page IconTo Next Page
To Previous Page IconTo Previous Page
To Previous Page IconTo Previous Page
Loading...
Heatilator • A36/42C, A36/42CH • Installers Manual • 4017-262 • Rev D • 10/07/13
6
F
E
D
B
C
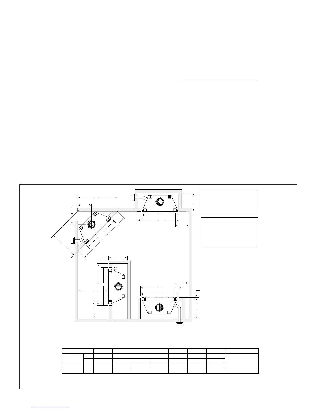
Across a
corner
G
As a
room
divider
A
48 in.
(1219 mm)
minimum
B
Along a wall
B
A
1/2 in. (13 mm) all
configurations
G
3/4 in. (19 mm) min. air
space from fireplace to
combustible materials. 1/2
in. (13 mm) allowed at
nailing flanges.
Note:
G
A*
In an exterior chase
or projecting into a
garage
B
Note: Measurements are FRAMING dimensions only and do
not include drywall either in the cavity or on the interior walls.
H
H
H
*
8 in. (203 mm) extra space
included for outside air
connection. If outside air duct
has no bend, this dimension
may be reduced as long as
minimum clearances are met.
Model # A B C D E F G H
in.
51 43 74 7/8 35 3/4 15 3/4 53 23
mm
1295 1092 1902 908 400 1346 584
in.
57 49 77 1/2 38 7/8 18 54 7/8 23
mm
1448 1245 1969 987 457 1394 584
A36
A42
12 in. (305 mm)
Minimum from FP
opening to any
perpendicular wall.
Figure 2.2 Fireplace Locations
NOTICE:
• Illustrationsandphotosreecttypicalinstallationsand
are FORDESIGNPURPOSESONLY.
• Illustrations/diagramsarenotdrawntoscale.
• Actualinstallation/appearancemayvaryduetoindividual
design preference.
• Hearth&HomeTechnologiesreservestherighttoalter
its products.
NOTICE: In addition to these framing dimensions, also
reference the following section: Clearances (Section 3).
NOTICE:
Aminimum3/4in.(19mm)airclearanceatthe
backandsidesofthereplaceassemblymustbe
maintained.
Chimney sections at any level require a 2 in. mini-
mum air space clearance between the framing
and chimney sections.
B. Design and Installation Considerations
NOTICE: Check building codes prior to installation.
• InstallationMUSTcomplywithlocal,regional,stateand
nationalcodesandregulations.
• Consultinsurancecarrier,localbuildinginspector,re
ofcialsorauthoritieshavingjurisdictionoverrestrictions,
installationinspectionandpermits.
• Before installing,determinethefollowing:
- Wherethereplaceistobeinstalled.
- Theventsystemcongurationtobeused.
- Gassupplypiping.
- Electricalwiring.
- Framingandnishingdetails.
- Whetheroptionalaccessories-devicessuchasa
fan,wallswitchorremotecontrol-aredesired.
1. Selecting Fireplace Locations
Thisreplacemaybeusedasaroomdivider,installed
alongawall,acrossacornerorusedinanexteriorchase.
SeeFigure2.2.
Locatingthereplaceinabasementshouldbeavoided.
Locatingnearfrequentlyopeneddoors,centralheat
outletsorreturns,orotherlocationsofconsiderableair
movementcanaffecttheperformance.
Considerationshouldbegiventothesefactorsbefore
decidingonalocation.

Table of Contents

Related product manuals