EasyManua.ls Logo

HIKVISION DS-KD9633-E6-WBE6 - Surface Mounting

HIKVISION DS-KD9633-E6-WBE6
102 pages
Print Icon
To Next Page IconTo Next Page
To Next Page IconTo Next Page
To Previous Page IconTo Previous Page
To Previous Page IconTo Previous Page
Loading...
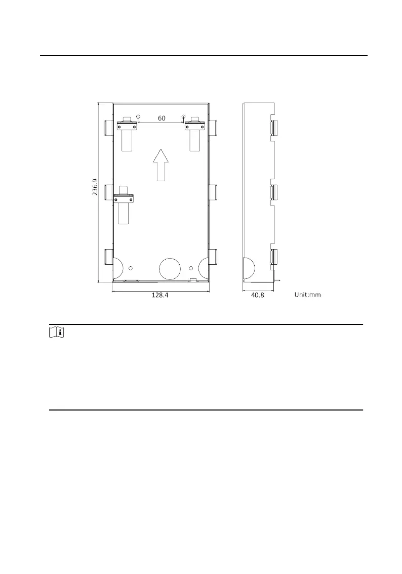
Gang Box
Figure 4-2 Gang Box
Note
The dimension of the gang box is 236.9 mm (W) × 128.4 mm (H) × 40.8
mm (D).
The installaon hole should be bigger than the actual size. The suggested
dimension of the installaon hole is 237.5 mm (W) × 128.9 mm (H) × 41.3
mm (D).
4.1.2 Surface Mounng
Steps
1. Paste the mounng template on the wall according to the installaon locaon
requirements. Drill holes according to the locaon of the screw holes of the
mounng template, and insert the expansion bolts into the screw holes.
2. Fix the mounng plate to the wall with 4 supplied screws.
3. Fix the device to the
mounng plate, and x the device with the set screws.
Video Intercom Face
Recognion Door Staon User Manual
9

Table of Contents

Related product manuals