EasyManua.ls Logo

Honda EXT12D - How to use the receptacle

Honda EXT12D
63 pages
Print Icon
To Next Page IconTo Next Page
To Next Page IconTo Next Page
To Previous Page IconTo Previous Page
To Previous Page IconTo Previous Page
Loading...
×
36
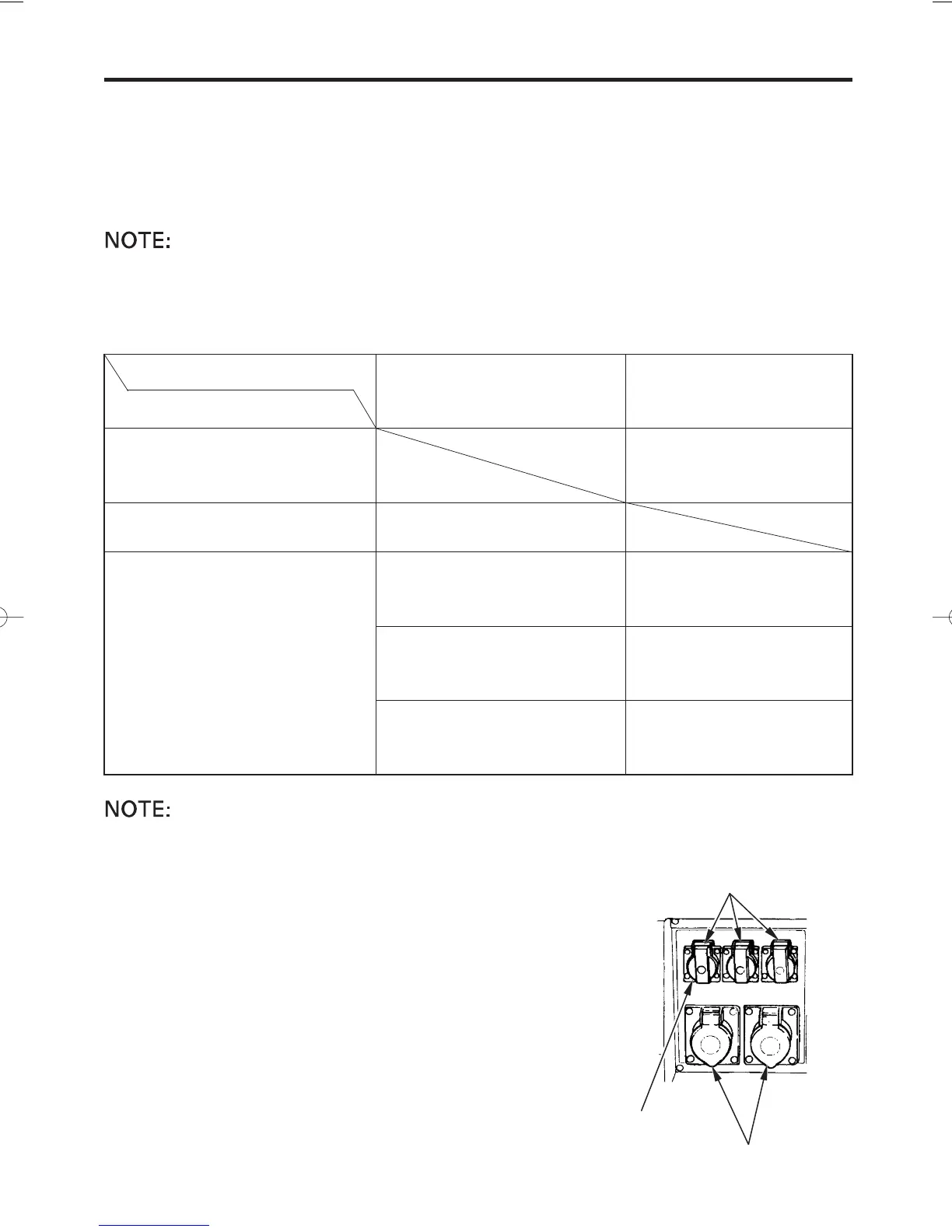
How to use the receptacle
EXT12D (F, G and GW types)
SINGLE PHASE
THREE PHASE
With this receptacle, the automatic throttle does not function (See page 8).
F, G and GW types
When two or more receptacle are used, refer to the table below and
apply the load to each receptacle equally to prevent overloading.
Voltage fluctuation can be prevented by applying the load equally to
the single phase receptacles.
Single phase
Total 9.6 kVA Max.
3.5 kVA Max. at 1
receptacle
Total 7.2 kVA Max.
3.0 kVA Max. at 1
receptacle
Total 4.8 kVA Max.
2.0 kVA Max. at 1
receptacle
Total 2.4 kVA Max.
1.0 kVA Max. at 1
receptacle
Three phase
Total 12 kVA Max.
Total 3 kVA
Total 6 kVA
Total 9 kVA
Which both the three-phase and single-phase
receptacles are used, convert the three-phase
and single phase output into the single-phase
output by using the formula below, and use the
receptacles with the total voltampere less than
9.6 kVA.
Three-phase output 0.8 = single phase output
Receptacle
Case
Using only single
phase
Using only three
phase
Using both Single
and three phase
06/03/10 13:19:14 32ZC6612_040

Related product manuals