EasyManua.ls Logo

HP ProLiant DL320 - System Switches

HP ProLiant DL320
83 pages
To Next Page IconTo Next Page
To Next Page IconTo Next Page
To Previous Page IconTo Previous Page
To Previous Page IconTo Previous Page
Loading...
Connectors, Switches, and LED Indicators
System Switches
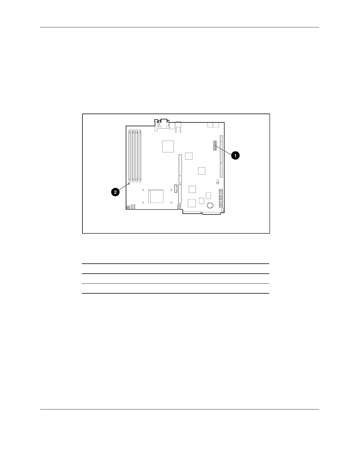
The server has a switch bank (SW1) for system configuration and a non-maskable interrupt
(NMI) switch that is used in the event of a service emergency that requires a complete data
dump prior to restarting the operating system.
Refer to the labels on the inside of the server access panel or to the following sections for the
proper switch settings. The following figure and table show the location of the system
switches.
Figure 4-4: System switches
Table 4-4: System Switches
Item Description
1 System configuration switch (SW1)
2 Non-maskable interrupt (NMI) switch
HP ProLiant DL320 Generation 2 Server Maintenance and Service Guide 4-5
HP CONFIDENTIAL Codename: Moonstar 266 Part Number: 293164-002 Last Saved On: 4/14/03 9:42 AM

Table of Contents

Other manuals for HP ProLiant DL320

Related product manuals