EasyManua.ls Logo

HTP PH100-55 - Page 36

HTP PH100-55
58 pages
Print Icon
To Next Page IconTo Next Page
To Next Page IconTo Next Page
To Previous Page IconTo Previous Page
To Previous Page IconTo Previous Page
Loading...
36
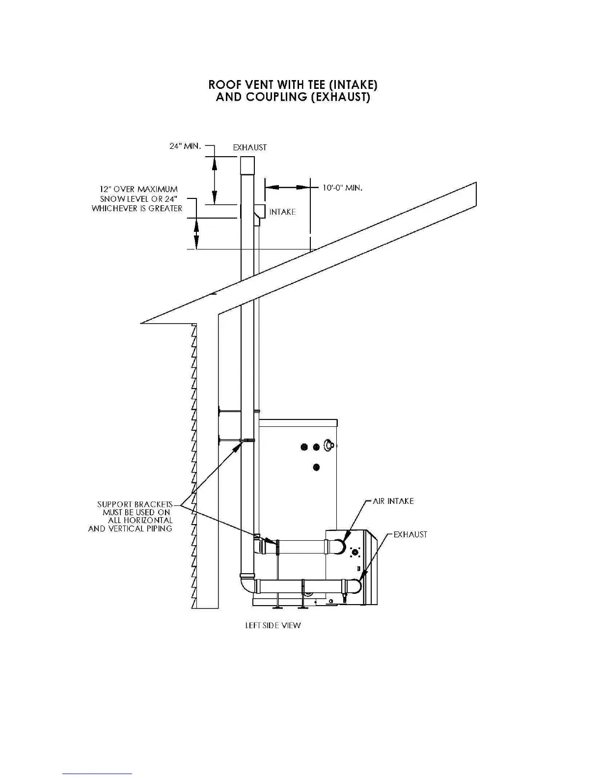
Figure 18LP-179-F
NOTE: This drawing is meant to demonstrate system venting only. The installer is responsible for all
equipment and detailing required by local codes.

Table of Contents

Related product manuals