EasyManua.ls Logo

HTP PHP199-119 - Internal Wiring Diagram

HTP PHP199-119
56 pages
Print Icon
To Next Page IconTo Next Page
To Next Page IconTo Next Page
To Previous Page IconTo Previous Page
To Previous Page IconTo Previous Page
Loading...
37
LP-454 REV. 1.6.15
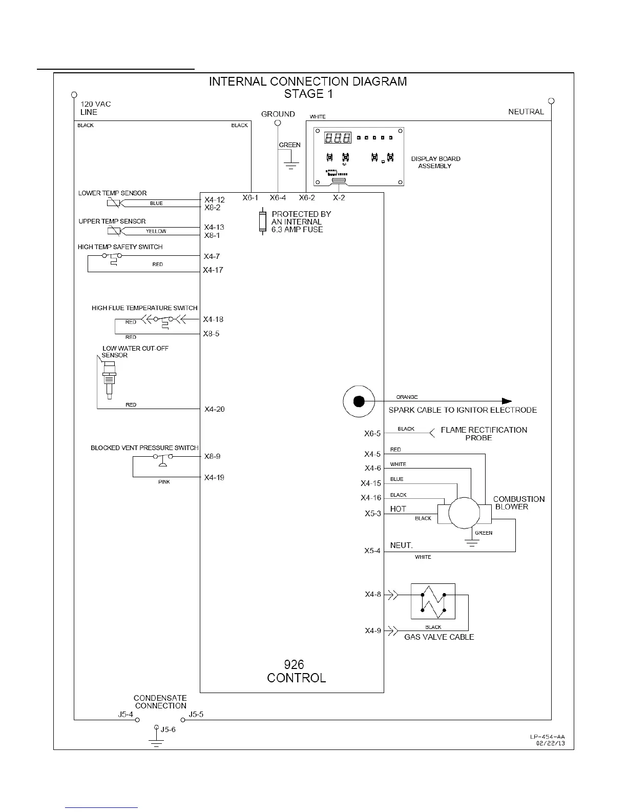
C. INTERNAL WIRING DIAGRAM
Figure 21 Stage 1 Wiring Diagram

Table of Contents

Related product manuals