EasyManua.ls Logo

HTP PHP199-119 - Condensate Removal System

HTP PHP199-119
56 pages
Print Icon
To Next Page IconTo Next Page
To Next Page IconTo Next Page
To Previous Page IconTo Previous Page
To Previous Page IconTo Previous Page
Loading...
34
LP-454 REV. 1.6.15
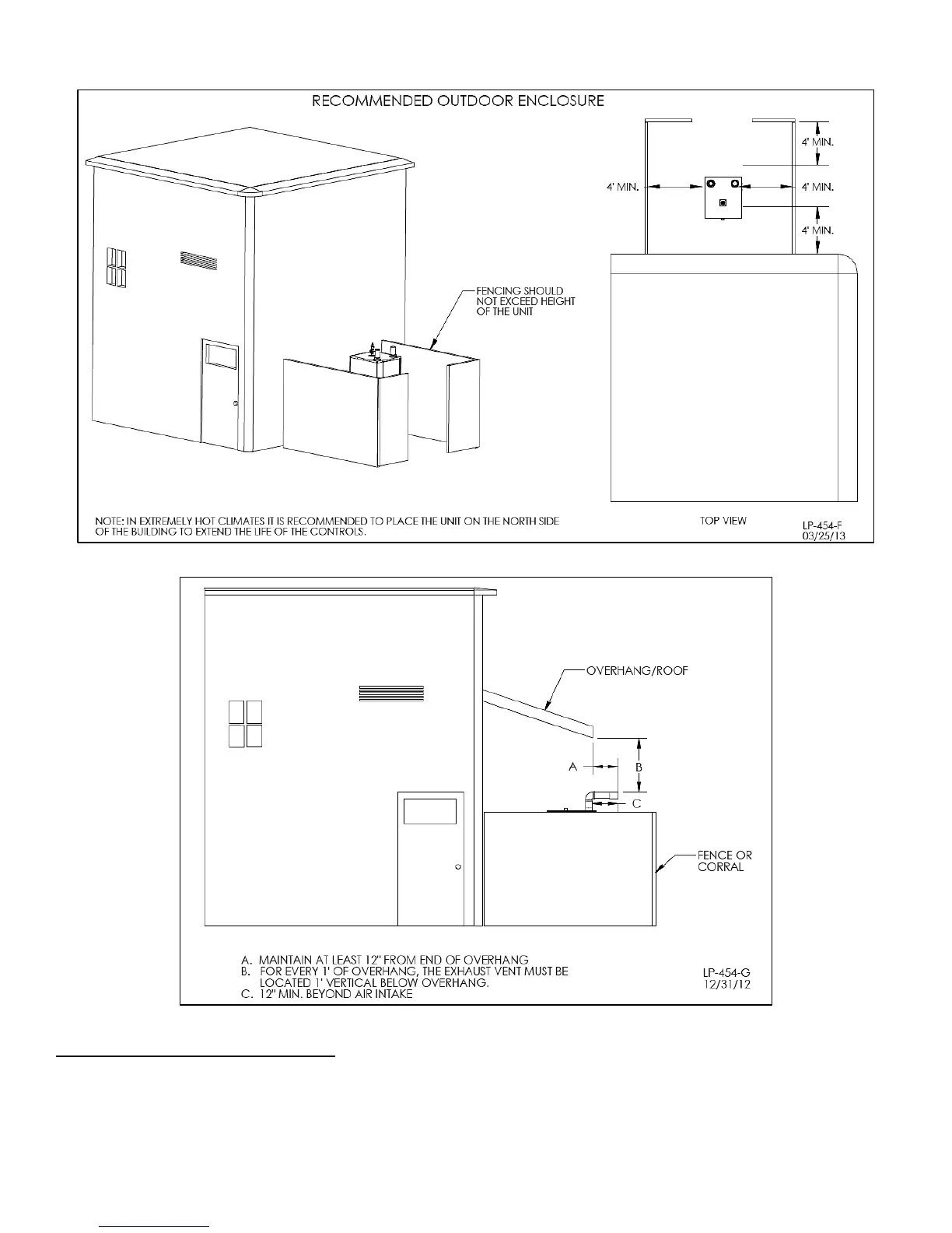
Figure 17
Figure 18
H. CONDENSATE REMOVAL SYSTEM
NOTE: Check with your local gas company to determine if combustion condensate disposal is permitted in your area. In the state of
Massachusetts, condensate must be neutralized before entering a drain.
This condensing high efficiency water heater has a condensate removal system. Condensate is water vapor derived from combustion
products, similar to that produced by an automobile when it is initially started. It is very important that the condensate line is sloped
down away from the heater and to a suitable drain.

Table of Contents

Related product manuals