EasyManua.ls Logo

Hunter ICC-800M

Hunter ICC-800M
44 pages
To Next Page IconTo Next Page
To Next Page IconTo Next Page
To Previous Page IconTo Previous Page
To Previous Page IconTo Previous Page
Loading...
19
SPRINKLER SYSTEM FUNDAMENTALS .............................................................................
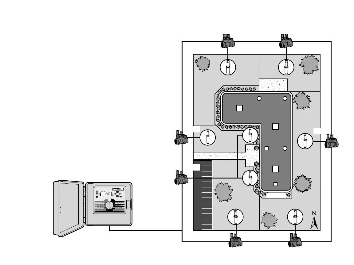
Valve 1
Station 1
Station 2
Station 3
Station 6
Valve 2
Valve 3
Valve 5
ICC Controller
Station 5
Valve 4
Station 4
®
® ®
®
Valve 6
®
Valve 7
®
®
®
Station 7
There are three main components that are involved with all automatic
sprinkler systems that are made today. They are the controller, control
valves, and the sprinklers.
The controller is what makes the whole system operate efficiently. It is
technically the brain of the entire system, instructing the valves when to
supply water to the sprinklers and for how long to do so. The sprinklers,
in turn, will direct the water towards the surrounding plants and lawn.
The valve controls a group of sprinklers called a watering station. These
stations are laid out in a fashion according to the type of plant life that
exists there, the locations of the plants, and the maximum amount of
water that can be pumped to the location. Each valve is connected via
wire to the terminal strip area inside of the controller. Here the wire is
connected to a number that corresponds to the valve’s station number.
The controller will operate the valves in order, only one at a time. When
a valve has completed it’s watering; it will switch to the next station that
has been programmed. This process is called the watering cycle. The
information pertaining to the watering times of the individual stations
and the duration of them is called a program
.

Related product manuals