EasyManua.ls Logo

IBM System x3500 M2 Type 7839 - Page 56

IBM System x3500 M2 Type 7839
126 pages
Print Icon
To Next Page IconTo Next Page
To Next Page IconTo Next Page
To Previous Page IconTo Previous Page
To Previous Page IconTo Previous Page
Loading...
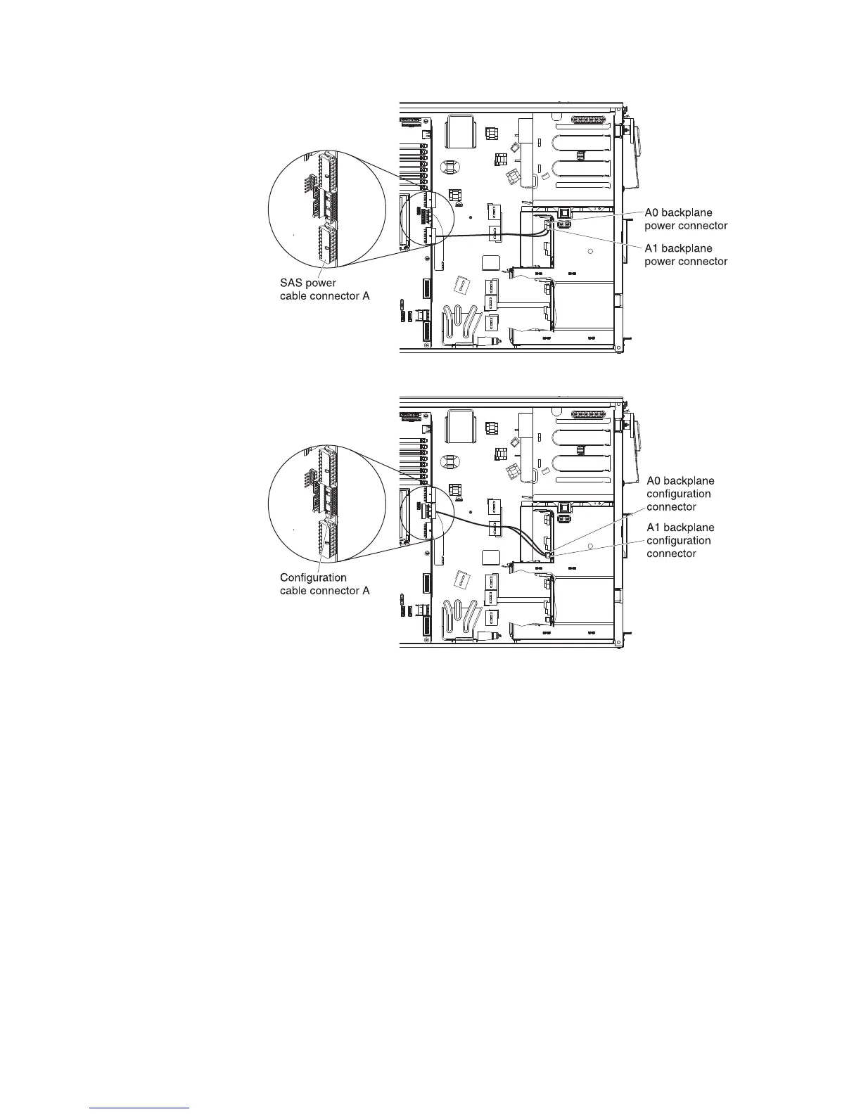
v The following illustration shows the internal configuration cable routing.
v The following illustration shows the internal signal cable routing for installing a
ServeRAID-BR10i SAS/SATA adapter.
42 IBM System x3500 M2 Type 7839: Installation and Users Guide

Table of Contents

Related product manuals