EasyManua.ls Logo

IDEAL Vogue S15 - Benchmark Commissioning Checklist

IDEAL Vogue S15
72 pages
Print Icon
To Next Page IconTo Next Page
To Next Page IconTo Next Page
To Previous Page IconTo Previous Page
To Previous Page IconTo Previous Page
Loading...
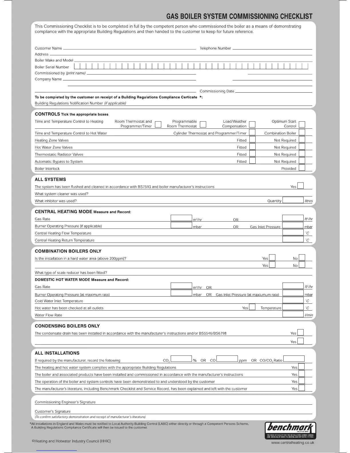
Gas Safe Register Number
Gas Safe Register Number
Gas Safe Register Number
Gas Safe Register Number
Gas Safe Register Number
Gas Safe Register Number
Gas Safe Register Number
Gas Safe Register Number
Gas Safe Register Number
Gas Safe Register Number
Gas Safe Register Number
Failure to install and commission according to the manufacturer’s instructions and complete this Benchmark Commissioning Checklist will invalidate the warranty. This
does not affect he customer’s statutory rights.
If yes, and if required by the manufacturer, has a water scale reducer been fitted?
If the condensate pipe terminates externally has the pipe diameter been increased and weatherproof insulation fitted?
Telephone Number

Other manuals for IDEAL Vogue S15

Related product manuals