EasyManua.ls Logo

Image DE100 - DRYER ENCLOSURE REQUIREMENTS

Image DE100
74 pages
Print Icon
To Next Page IconTo Next Page
To Next Page IconTo Next Page
To Previous Page IconTo Previous Page
To Previous Page IconTo Previous Page
Loading...
INSTALLATION PROCEDURES
3-4
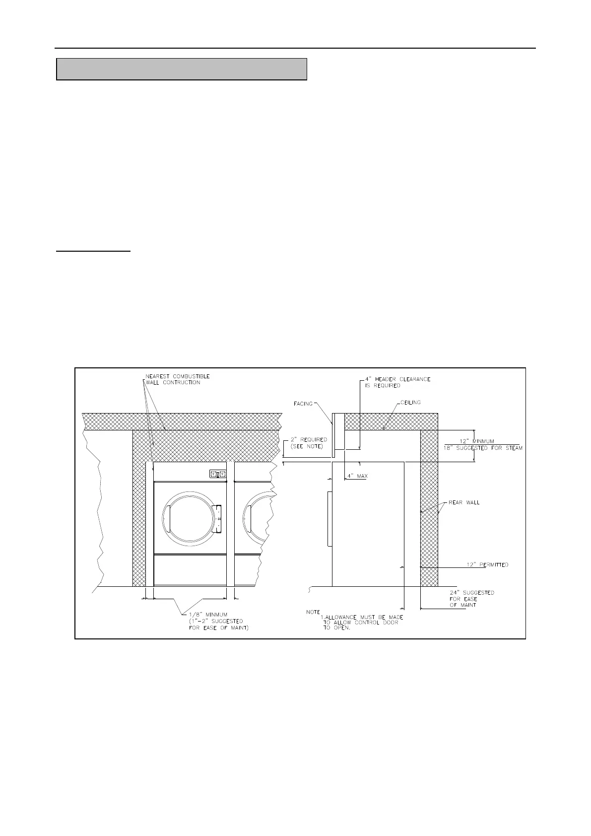
Even though a 12 inches clearance is acceptable, it is recommended that the rear of the
dryer be positioned approximately two (2) feet (24 inches) from nearest obstruction (i.e., wall) for
ease of installation, maintenance, and service. Bulkheads and partitions should be made from
noncombustible materials.
The clearance between the bulkhead header and the dryer must be a minimum of 4 inches
and must not extend more than 4 inches to the rear of the dryer front. The bulkhead facing must
not be closed in all the way to the top of the dryer. A 2 inches clearance is required.
NOTE: Bulkhead facing should not be installed until after dryer is in place. Ceiling area
must be located a minimum of 12 inches above the top of the dryer.
IMPORTANT: Even though a minimum of only 12 inches is required, 18 inches or more is
suggested, for steam dryers and especially in cases where sprinkler heads are over
the dryers.
NOTE: When fire sprinkler systems are located above the dryers, a minimum of 18
inches above the dryer console (module) is suggested. Dryers may be positioned
side wall to side wall however, 1 or 2 inches is suggested between dryers or
wall) for ease of installation and maintenance. Allowances must be made for the
opening and closing of the control and lint doors.
Figure.3-4 Dryer Clearance to Adjacent Wall Structures
C. DRYER ENCLOSURE REQUIREMENTS

Related product manuals