EasyManua.ls Logo

Immergas EOLO STAR 24 3 E - Main Dimensions and Specifications; Anti-Freeze Protection

Immergas EOLO STAR 24 3 E
28 pages
Print Icon
To Next Page IconTo Next Page
To Next Page IconTo Next Page
To Previous Page IconTo Previous Page
To Previous Page IconTo Previous Page
Loading...
1-3
1-2
4 - IE
INSTALLATORUSERTECHNICIAN
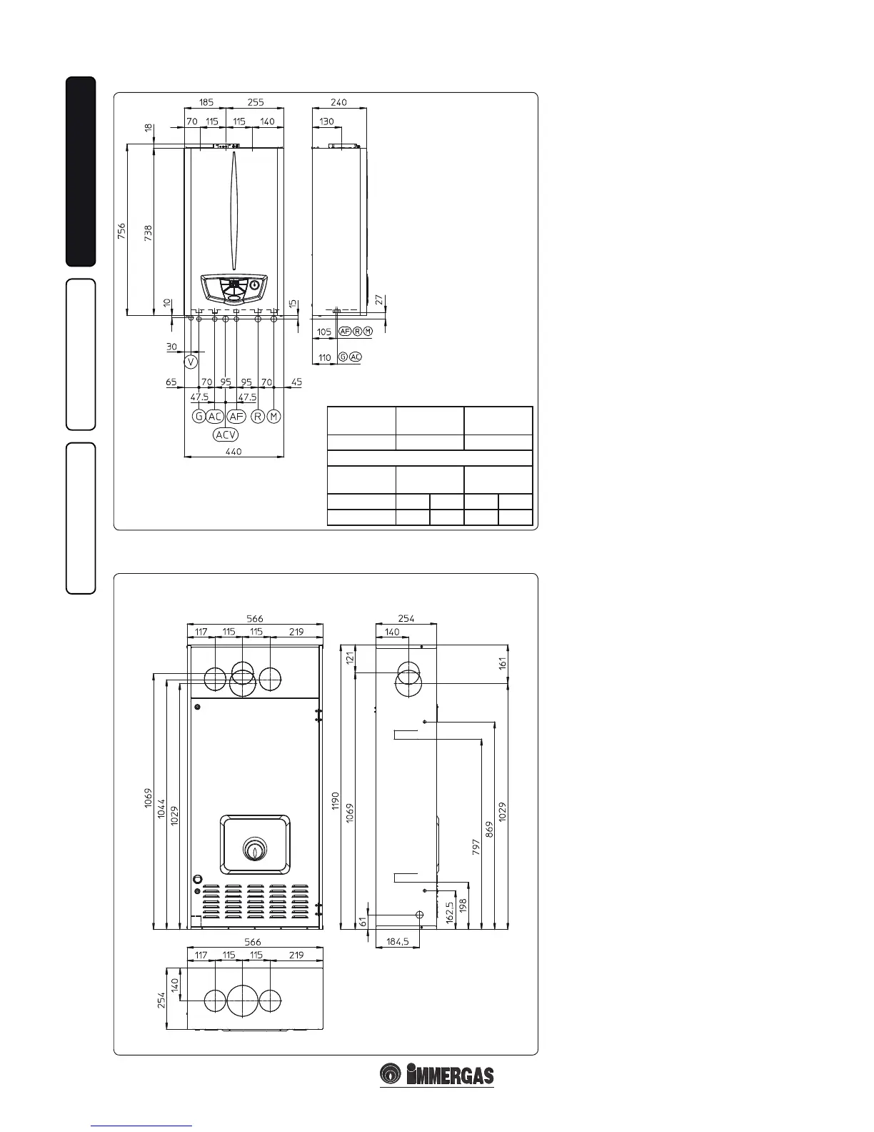
1.2 MAIN DIMENSIONS.
1.3 MAIN DIMENSIONS
RECESSING KIT OPTIONAL.
Key:
G - Gas supply
AC - Domestic hot water outlet
ACV - Domestic hot water inlet
solar valve kit (Optional)
AF - Domestic cold water inlet
R - System return
M - System delivery
V - Electric attachment
N.B.: connection group
(optional)
1.4 ANTIFREEZE PROTECTION.
Minimum temperature -5°C. e boiler is sup-
plied with an antifreeze function as standard that
activates the pump and burner when the system
water temperature in the boiler falls below 4°C.
e antifreeze function is only guaranteed if:
- the boiler is correctly connected to gas and
electricity power supply circuits;
- the boiler is powered constantly;
- the boiler is not in no ignition block (Parag.
2.4);
- the boiler essential components are not faulty.
In these conditions the boiler is protected against
freezing to an environmental temperature of -5°C.
Minimum temperature -15°C. If the boiler is
installed in a place where the temperature falls
below -5°C, and in the event there is no gas (or
the boiler goes into ignition block), the appliance
can freeze.
To prevent the risk of freezing follow the instruc-
tions below:
- Protect the heating circuit from freezing by
adding a high quality anti-freeze liquid that is
not considered a health hazard. It is necessary
to carefully follow manufacturer instructions
regarding this liquid when considering the
percentage necessary that depends on the mini-
mum temperature the system is to be protected
from. An aqueous solution must be prepared
with a potential water pollution potential of 2
(EN 1717:2002).
e materials that Immergas boilers are made
from are resistant to ethylene and propylene glycol-
based anti-freeze liquids (If the mixtures have been
prepared according to industry standards).
For life and possible disposal, follow the supplier’s
instructions.
- Protect the condensate drain trap and circuit
board against freezing by using an accessory
that is supplied on request (antifreeze kit)
comprising two electric heating elements,
the relevant cables and a control thermostat
(carefully read the installation instructions
contained in the accessory kit pack).
Boiler anti-freezing protection is thus ensured
only if:
- the boiler is correctly connected to electricity
power supply circuits;
- Main switch is inserted;
- the anti-freeze kit components are ecient.
In these conditions the boiler is protected against
freezing to temperature of -15°C.
e warranty does not cover damage due to inter-
ruption of the electrical power supply and failure
to comply with that stated on the previous page.
N.B.: if the boiler is installed in places where
the temperature falls below 0°C, the heating
attachment pipes must be insulated.
1.5 ATTACHMENTS.
Gas connection (Appliance category II
2H3+
).
Our boilers are designed to operate with methane
gas (G20) and LPG. Supply pipes must be the
same as or larger than the 3/4”G boiler tting.
Before connecting the gas line, carefully clean
inside all the fuel feed system pipes to remove any
residue that could impair boiler eciency. Also
make sure the gas corresponds to that for which
the boiler is prepared (see boiler data-plate). If
dierent, the appliance must be converted for
operation with the other type of gas (see conver-
ting appliance for other gas types). e dynamic
Height
(mm)
Width
(mm)
Depth
(mm)
756 440 240
ATTACHMENTS
GAS
DOMESTIC
HOT WATER
PLANT
GACAFRM
3/4” 1/2” 1/2” 3/4” 3/4”

Other manuals for Immergas EOLO STAR 24 3 E

Related product manuals