EasyManua.ls Logo

Immergas MYTHOS HP - Separator Kit Installation

Immergas MYTHOS HP
68 pages
Print Icon
To Next Page IconTo Next Page
To Next Page IconTo Next Page
To Previous Page IconTo Previous Page
To Previous Page IconTo Previous Page
Loading...
28
INSTALLER
USERMAINTENANCE TECHNICIAN
TECHNICAL DATA
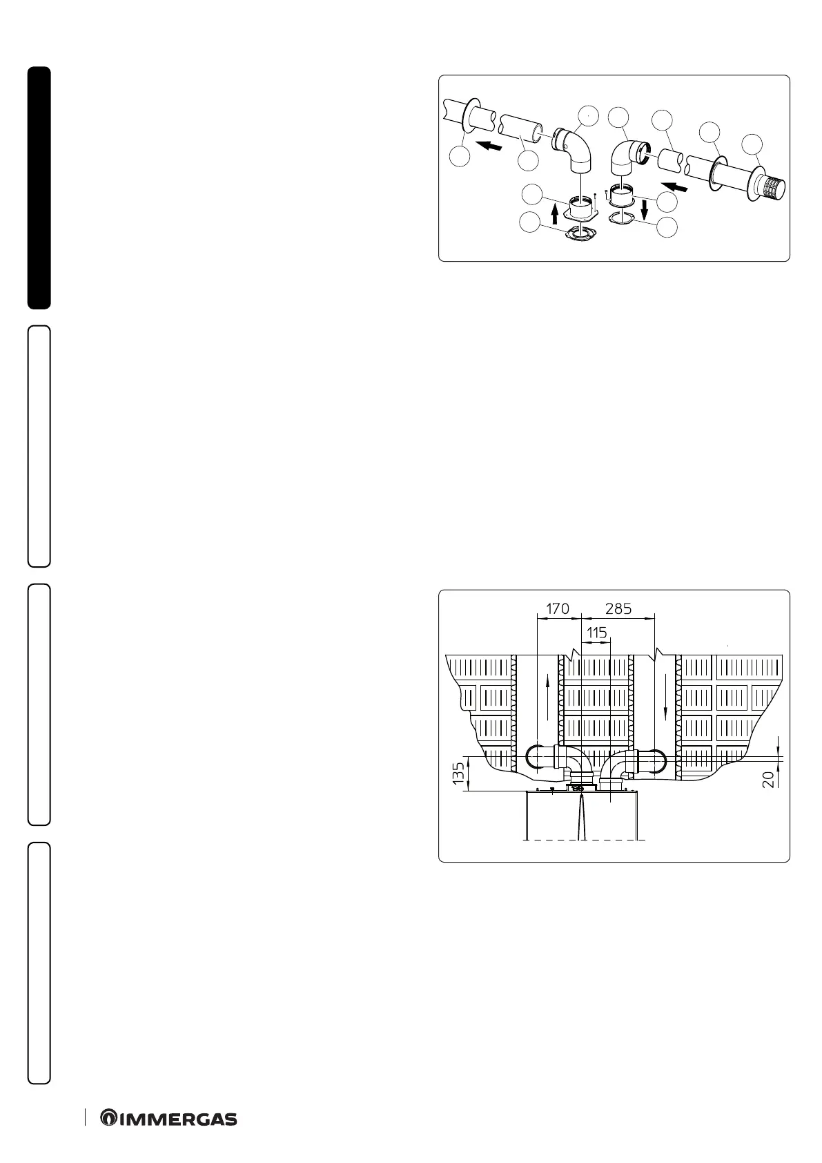
1.17 SEPAR ATOR KIT INSTALLATION
Type C conguration, sealed chamber and fan assisted,
separator kit Ø 80/80
is kit allows air to come in from outside the building and the
exhaust to exit from the chimney, ue or intubated duct through
divided ue exhaust and air intake pipes.
Combustion products are expelled from pipe (S) (in plastic, so as
to resist acid condensate).
Air is taken in through duct (A) for combustion (this is also in pla-
stic).
e intake pipe (A) can be installed either on the right or le hand
side of the central exhaust pipe (S).
Both ducts can be routed in any direction.
Mounting the separator kit Ø80/80 (Fig.26):
1. Install the ange (4) on the central hole of the boiler, positio-
ning gasket (1) with the circular projections downwards in
contact with the boiler ange.
2. Tighten with the hexagonal head and at point screws provi-
ded in the kit.
3. Replace the at ange present in the lateral hole with respect to
the central one (according to needs) with the ange (3), posi-
tioning the gasket (2) already present in the boiler
4. Tighten with the supplied self-tapping screws with drill bit.
5. Fit the bends with male side (smooth) (5) in the female side of
the anges (3 and 4).
6. Fit the intake terminal (6) with the male side (smooth) in the
female side of the bend (5) up to the end stop, ensuring that the
internal and external wall sealing plates are tted
7. Fit the exhaust pipe (9) with the male end (smooth) to the fe-
male end of the bend (5) up to the end stop; making sure that
the internal wall sealing plate has been tted, this will ensure
sealing and joining of the elements making up the kit.
C52* - C82
1
4
7
9
5
5
6
7
8
3
2
S
A
26
e kit includes (Fig. 26):
No.1 Exhaust gasket (1)
No.1 Flange gasket (2)
No.1 Female intake ange (3)
No.1 Female exhaust ange (4)
No.2 Bend 90° Ø 80 (5)
No.1 Intake terminal Ø 80 (6)
No.2 Internal wall sealing plates (7)
No.1 External wall sealing plate (8)
No.1 Exhaust pipe Ø 80 (9)
* to complete C52 conguration, also provide for a “green range” roof
discharge terminal.
e conguration on walls opposite the building is not allowed.
Installation clearances (Fig. 27)
e minimum installation clearance measurements of the Ø
80/80 separator terminal kit have been stated in some limit condi-
tions.
C42
27

Related product manuals