EasyManua.ls Logo

Immergas Victrix 20 - Boiler Installation; Installation Instructions

Immergas Victrix 20
36 pages
Print Icon
To Next Page IconTo Next Page
To Next Page IconTo Next Page
To Previous Page IconTo Previous Page
To Previous Page IconTo Previous Page
Loading...
Key:
V - Electrical connection
G - Gas
U - Domestic hot water outlet
E - Domestic water inlet
R - System return
M - System delivery
S - Condensate drain (min. internal diameter Ø 13mm)
Important: wall mounting of the boiler must guarantee stable
and ecient support for the generator. e plugs supplied
standard with the appliance ensure adequate support only if
inserted correctly (according to technical standards) in walls
made of solid or cavity bricks. For walls made from bricks or
cavity blocks, partitions with limited static properties, or in
any case walls other than those indicated, a static test must
be carried out to ensure adequate support. ese boilers are
used to heat water to below boiling point at atmospheric
pressure. ey must be connected to a heating system and
domestic water circuit suitable for their performance and
output. Moreover, they must be installed in a place where
the temperature cannot fall below 0°C. ey must not be
exposed to atmospheric agents.
385 Victrix 27
350 Victrix 20
1
BOILER
INSTALLATION
1.1 Installation instructions.
Immergas gas appliances must be installed exclusively
by a professionally qualied and authorised technician.
Installation must be carried out according to the standards,
current legislation and in compliance with local technical
regulations and the required procedures. Before installing the
appliance, ensure that it is delivered in perfect condition; if
in doubt, contact the supplier immediately. Packing materials
(staples, nails, plastic bags, polystyrene foam, etc.) constitute
a hazard and must be kept out of the reach of children. If
the appliance is installed inside or between other cabinets or
furniture, ensure sucient space for normal maintenance; a
clearance of 2÷3 cm between the boiler casing and the sides
of the cabinet is recommended.
Keep all ammable objects (paper, rags, plastic, polystyrene,
etc.) away from the appliance. In case of anomalies, faults or
imperfect operation, the appliance must be deactivated; call a
qualied technician (e.g. the Immergas Technical Assistance
Centre, which has specic technical expertise and original
replacement parts). Never attempt to modify or repair the
appliance alone. Failure to observe the above implies personal
responsibility and invalidates the warranty.
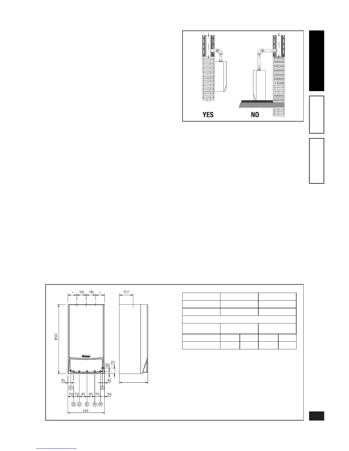
Installation standards: these boilers are designed exclusively
for wall-mounted installation; they must be used for heat-
ing rooms and the production of domestic hot water and
similar uses. e wall surface must be smooth, without
any protrusions or cavities enabling access to the back
part. ey are NOT designed for installation on plinths
or oors (see g.).
1.2 Main dimensions.
Height (mm) Width (mm) Depth (mm)
850 450 350 - Victrix 20
385 - Victrix 27
CONNECTIONS
GAS
DOMESTIC
HOT WATER
SYSTEM
G U E R M
1/2” 1/2” 1/2” 3/4” 3/4”
3
INSTALLERUSERTECHNICIAN

Table of Contents

Related product manuals