EasyManua.ls Logo

Immergas Victrix 20 - Ducting Existing Flues

Immergas Victrix 20
36 pages
Print Icon
To Next Page IconTo Next Page
To Next Page IconTo Next Page
To Previous Page IconTo Previous Page
To Previous Page IconTo Previous Page
Loading...
Internal installation in B
23
conguration.
The appliance can be installed inside buildings in B
23
configuration; in this case, make sure to respect all
the technical standards and current national and local
regulations(see page 6).
1.6 Ducting existing ues.
Ducting is an operation through which, within the context
of restructuring a system and with the introduction of one or
more special ducts, a new system is executed for evacuating
the fumes of a gas appliance, starting from an existing ue
(or a chimney) or a technical hole. Ducting requires using
conduits declared suitable for the purpose by the manufac-
turer, following the installation and operation instructions
provided by the manufacturer, and the requirements of the
standard.
Immergas ducting system. “Green RangeØ 60 mm rigid
and Ø80 exible ducting systems can only be used for domestic
use and with Immergas condensing boilers.
In any case, ducting operations must respect the provisions
contained in the standards and in current technical regula-
tions; in particular, the declaration of conformity must be
compiled at the end of work and on commissioning of the
ducted system. e instructions in the project or technical
report must likewise be followed, in cases provided for by
the standard and current technical regulations. e system
or components of the system have a technical life complying
with current standards, provided that:
- it is used in average atmospheric and environmental condi-
tions, according to current regulations (absence of fumes,
dusts or gases that can alter the normal thermophysical
or chemical conditions; existence of temperatures coming
within the standard range of daily variation, etc.).
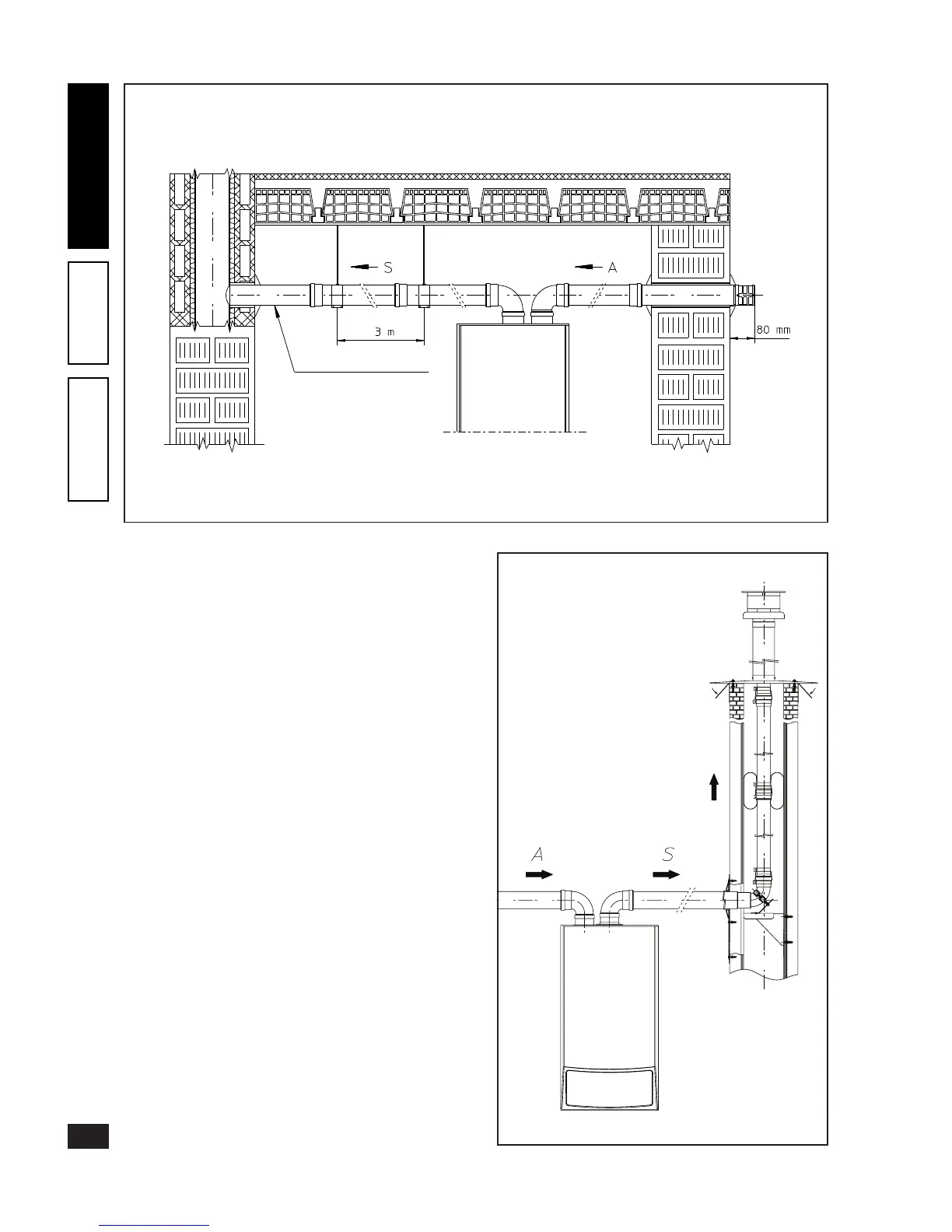
C83x
C83x
12
INSTALLERUSERTECHNICIAN
13
INSTALLERUSERTECHNICIAN

Table of Contents

Related product manuals