EasyManua.ls Logo

Integra DTR-7.4 - Schematic Diagram

Integra DTR-7.4
106 pages
Print Icon
To Next Page IconTo Next Page
To Next Page IconTo Next Page
To Previous Page IconTo Previous Page
To Previous Page IconTo Previous Page
Loading...
DTR-7.4
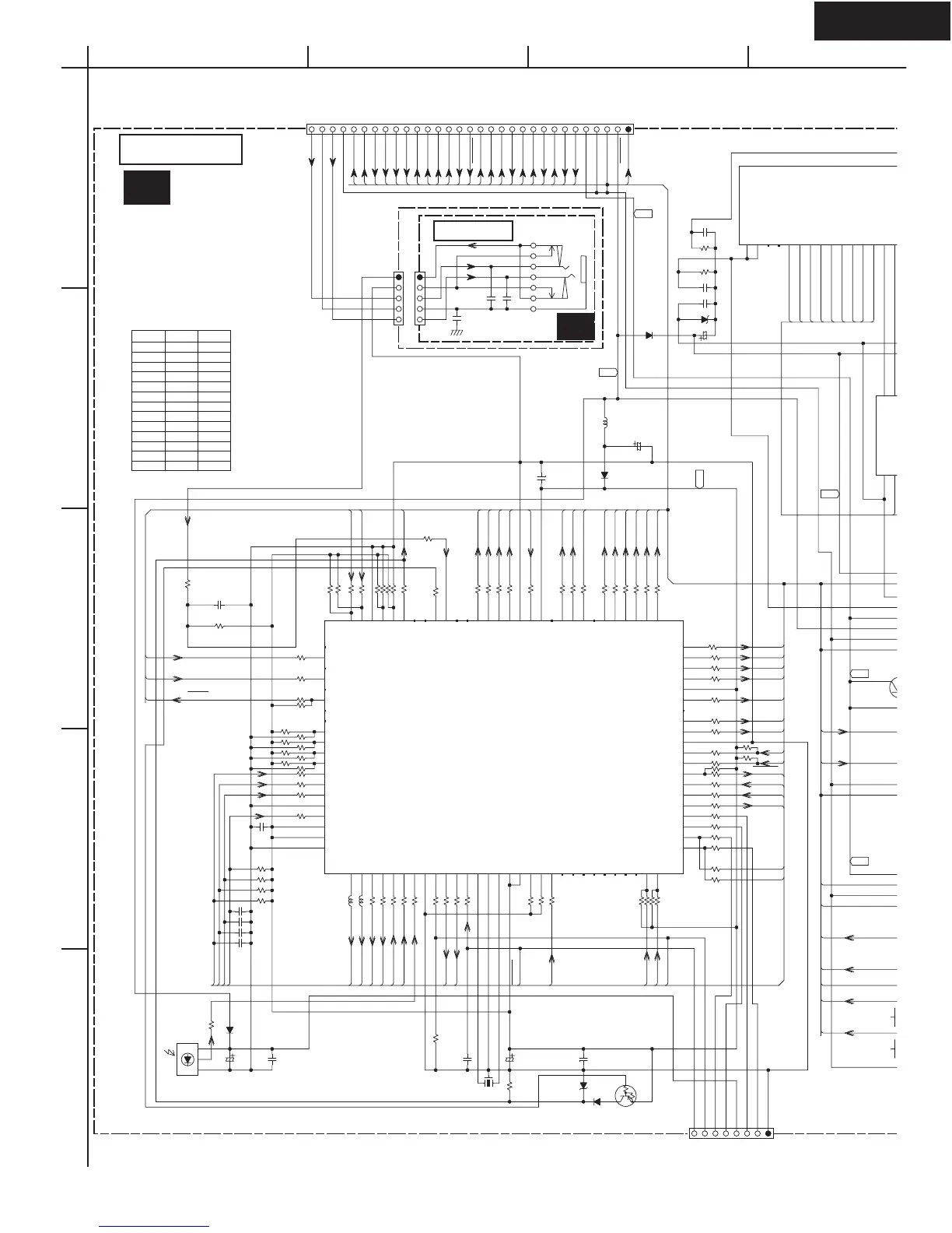
SCHEMATIC DIAGRAM 1 Display and submicroprocessor sections
P7201A TO NAAR-8078 (SCH-9)
5.6
5.0
12.0
5.0
12.0
12.0
K
OR 2
Q7
5
KT
C
OR 2
S
P36
F2
F2
NP
NP
P35
P34
P33
P32
P31
P30
P29
P28
P27
P26
52
53
54
55
56
57
58
59
60
61
62
63
64
65
66
P7203
FLASH WRIT
ER
JL7202B
JL7202A
U7201
SPS-444-1-
VP
L7201
NCH-1471
R7201
LM182
R7202
LM182
P7481
HEADPHONES
Q7202
KRA103S
OR RN2403
X7201
CST16.00MX
W0C1
Q7201
M30626FHPFP
1:P96/ANEX1/SOUT4
1
24:P76/TA3 OUT
24
25:P75/TA2 IN/~W
25
26:P74/TA2 OUT/W
26
27:P73/~CT S2/~RTS2/TA1IN/~V
27
28:P72/CLK 2/TA1OUT/V
28
29:P71/RXD2/SCL/TA0IN/TB5IN
29
2:P95/ANEX0/CLK4
2
30:P70/TXD2/SDA/TA0OUT
30
3:P94/DA1/TB4IN
3
4:P93/DA0/TB3IN
4
51:P43/A19
51
52:P42/A18
52
53:P41/A17
53
5:P92/TB2IN/SOUT3
5
6:P91/TB1IN/SIN3
6
78:P12/D10
78
79:P11/D9
79
7:P90/TB0IN/CLK3
7
80:P10/D8
80
AVCC99
AVSS96
BYTE8
CNVSS
9
P00/D088
P01/D187
P02/D2
86
P03/D385
P04/D4
84
P05/D583
P06/D6
82
P07/D781
P100/AN097
P101/AN195
P102/AN294
P103/AN393
P104/AN4/~KI092
P105/AN5/~KI191
P106/AN6/~KI290
P107/AN7/~KI389
P13/D11 77
P14/D12 76
P15/D13/~INT3
75
P16/D14/~INT4
74
P17/D15/~INT5 73
P20/A0[/D0/_] 72
P21/A1[/D1/D0]
71
P22/A2[/D2/D1]
70
P23/A3[/D3/D2] 69
P24/A4[/D4/D3] 68
P25/A5[/D5/D4] 67
P26/A6[/D6/D5] 66
P27/A7[/D7/D6] 65
P30/A8[/_/ D7]
63
P31/A9 61
P32/A10 60
P33/A11 59
P34/A12
58
P35/A13 57
P36/A14 56
P37/A15 55
P40/A16 54
P44/~CS0 50
P45/~CS1 49
P46/~CS2 48
P47/~CS3 47
P50/~WRL/~ WR 46
P51/~WRH/~BHE
45
P52/~RD 44
P53/BCLK43
P54/~HLDA42
P55/~HOLD41
P56/ALE 40
P57/~RDY/CLKOUT 39
P60/CTS0/RTS0 38
P61/CLK0 37
P62/RXD036
P63/TXD0 35
P64/~CTS1/~RTS1/~C 34
P65/CLK1 33
P66/RXD132
P67/TXD1
31
P77/TA3IN23
P80/TA4OUT/U
22
P81/TA4IN/~U21
P82/~INT020
P83/~INT119
P84/~INT218
P85/~NMI17
P86/XCOUT11
P87/XCIN10
P97/~ADTRG/SIN4100
VCC116
VCC262
VREF98
VSS114
VSS264
XIN15
XOUT13
~RESET
12
SEG2634
SEG2733
SEG2831
VP32
D7501
UDZ11B
D7203
UDZ5.1B
C7203
474J
C7204
474J
C7201
100/6.3
C7510
33/50
C7202
100/6.3
C7207
100/6.3
D7502
1SS352
OR
1SS355
D7204
D7201
1SS352
OR 1SS355
D7202
1SS352
OR 1SS355
C7483
104Z
C7482
101J
C7481
101J
C7214
102K
C7509
474Z
C7501
474Z
C7502
474Z
C7213
102K
C7208
104Z
C7293
102K
C7294
102K
C7295
102K
C7297
102K
C7206
104Z
S7574
FM MODE
S7542
DIRECT
R7371
10K
R7382
1K
R7389
*
*
R7390
*
*
R7391
*
*
R7392
*
*
R7292
*
*
R7291
*
*
R7290
*
*
R7501220
R7502
220
R7258 10K
R7431
220
R7432
2.2K
R7340
10K
R7339
10K
R7509
330
R7205
1K
R7309
10K
R7229 220
R7271
10K
R7289
*
*
R7338
10K
R7268
10K
R7267
10K
R7266
10K
R7265
10K
R7256
10K
R7255
10K
R7254
10K
R7253
10K
R7252
10K
R7251
10K
R7250 4.7K
R7249
4.7K
R7260 10K
R7272
220
R7259
10K
R7301
220K
R7330 4.7K
R7386 10K
R7380
10K
R7379
10K
R7329
10K
R7237 220
R7263 1K
R7276
*
R7376
*
R7277
*
R7377
*
R7286 10K
R7279 1K
R7397 2.7K
R7393
2.7K
R7394
2.7K
R7395
2.7K
R7212
1K
R7211
1K
R7280
1K
R7275
4.7K
R7220
1K
R7230
220
R7219
10K
R7218
10K
R7210
1K
R7209
1K
R7207
1K
R7206
1K
R7204
1K
R7203
1K
R7284 10K
R7282
10K
R7297
4.7K
R7295
4.7K
R7294
4.7K
R7293
4.7K
R7248
10K
R7247
10K
R7245
10K
R7243
10K
R7242
10K
R7240
10K
R7239
10K
R7238
220
R7236
220
R7235
220
R7234
100
R7233
100
R7232
100
R7231
100
VDST
RI
ISS
HPR
HPE
HPL
GND
SYNC
OSDCS
SUBRES
+12V
GND
GND
+5.6S
SUBREQ
SUBPOFF
MAINREQ
FLOSDDA
FLOSDCL
DIMPWM
REMIN
VDDA
VDCL
VSYNC
232RX
232TX
NETTX
NETRX
SUBSO
MAINSO
MAINSCK
P36
P35
P34
P33
P32
P31
P30
P28
P29
+12V
P27
P26
GND
+5.6S
-VP
P28
RI
VDST
MAINREQ
SUBPOFF
TUNDOWN
TUNUP
PRE-L
PRE-R
STBY
RZDVD
PURE
UPSPL
RZNET
RZCD
RZPH
RZAM
RZT1
HPDET
LEDGRE
SYNC
LEDRED
RZV1
ISS
RZV5
FLRES
RZV4
RZV3
RZV2
LEDRED
VBJ
VAJ
LEDGRE
K3 SUBREQ
K2 MAINSCK
K1 MAINSO
SUBSO
K0
NETRX
NETTX
K0
FLOSDDA
FLOSDCL
K1
DIMPWM
MAININ
SUBRES
232RX
232TX
CNVSS
OSDCS
FLCS1
REMIN
VDDA
VDCL
VSYNC
AUDIO-SEL
K2
K3
GND
DTR7.4 DTR-7.4
COUNTRY MDD MPA
R7276 - -
R7376 10K 10K
R7277 0 0
R7377 - -
R7289 0 10K
R7389 - 33K
R7290 - 33K
R7390 10K 56K
R7291 - -
R7391 10K 10K
R7292 - -
R7392 10K 10K
NADIS-7746
NAETC-7749
U1
U4
A
1
2
3
4
5
BCD

Other manuals for Integra DTR-7.4

Related product manuals