EasyManua.ls Logo

Intel STL2 - Server Board Motherboard - Installing Server Board Mounting Bumpers

Intel STL2 - Server Board Motherboard
80 pages
To Next Page IconTo Next Page
To Next Page IconTo Next Page
To Previous Page IconTo Previous Page
To Previous Page IconTo Previous Page
Loading...
20 Intel Server Board STL2 Product Guide
jumper with the pliers, never the wide sides. Gripping the wide sides can
damage the contacts inside the jumper, causing intermittent problems with
the function controlled by that jumper. Take care to grip with, but not
squeeze, the pliers or other tool you use to remove a jumper, or you may
bend or break the stake pins on the board.
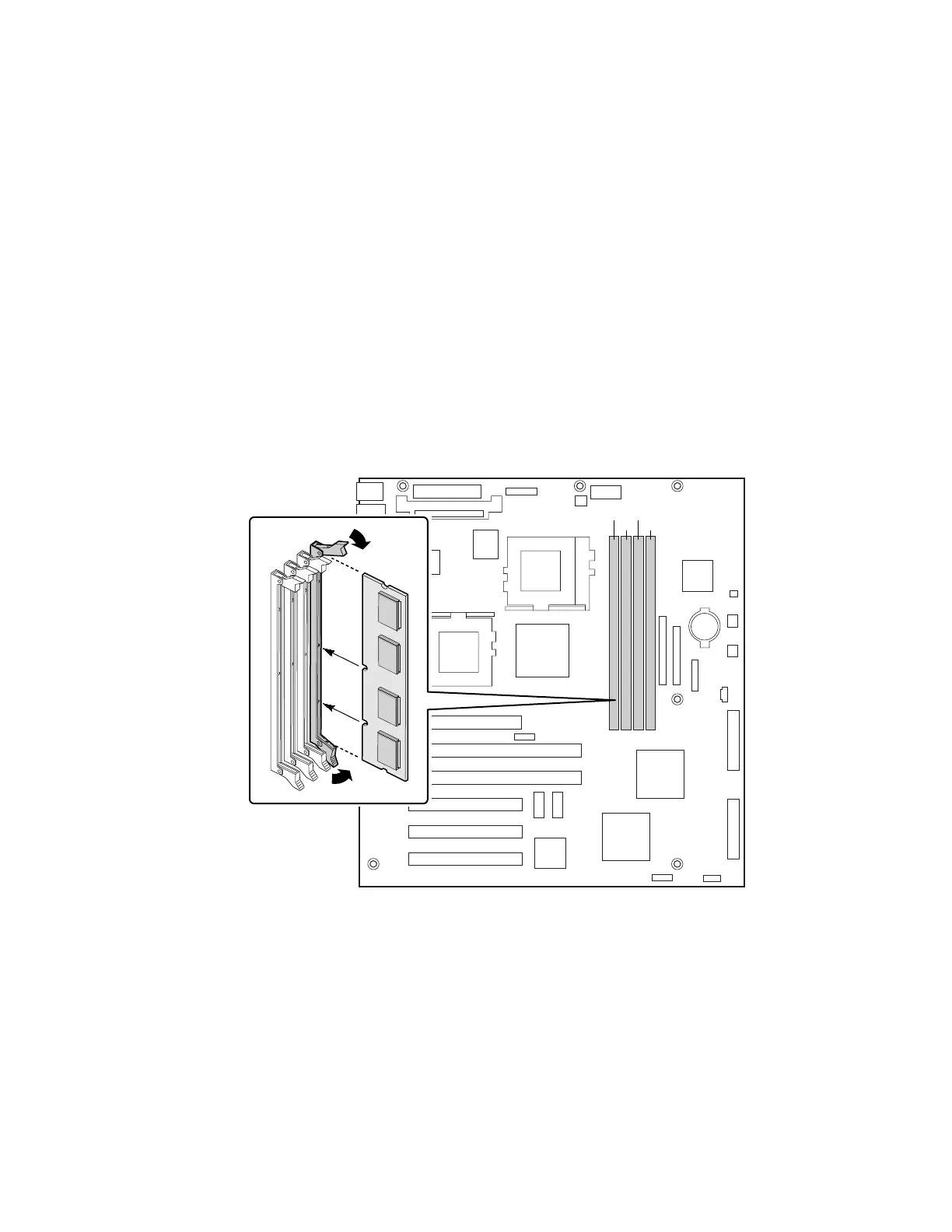
Memory
Only PC133-compliant SDRAM is supported by the server board. Install from 64 MB to 4 GB of
registered memory, using up to four single- or double-banked DIMMs.
DIMMs must be installed in order from slot 1 to slot 4, no empty slots between installed DIMMs.
Slot 1 is the slot farthest from the processors.
Installed DIMMs must be the same speed and must all be registered. For a list of supported
memory, call your service representative or visit the Intel Support website:
http://support.intel.com/support/motherboards/server/STL2/compat.htm
OM10673
2
1
4
3
Figure 3. Installing DIMMs

Table of Contents

Other manuals for Intel STL2 - Server Board Motherboard

Related product manuals