EasyManua.ls Logo

Intelbras AMT 2018 E - Telephone Line Input; Connector for GPR Module

Intelbras AMT 2018 E
52 pages
Print Icon
To Next Page IconTo Next Page
To Next Page IconTo Next Page
To Previous Page IconTo Previous Page
To Previous Page IconTo Previous Page
Loading...
13
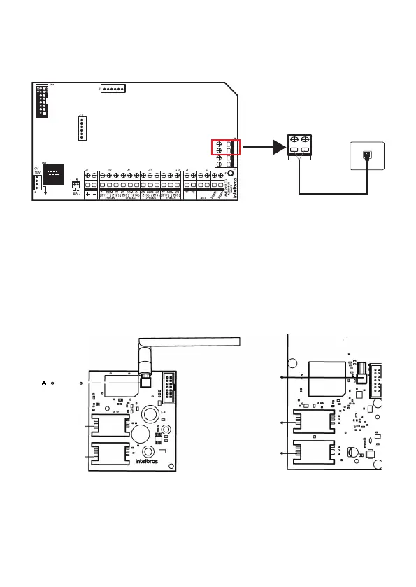
1.8. Telephone line input
This is the telephone line’s input, connect the two wires of the public telephone line
to it.
Alarm center
LINEPHONE
BUSBAR
SIREN
LINE
Telephone Line
Note: to congure the dialing settings through the telephone line, access the com-
plete manual on the site: www.intelbras.com.br
.
1.9. Connector for GPR module
Communication via GPRS occurs through the addition of the CHIP in the module that
comes with the center.
Note: only the AMT 2018 EG, AMT 2018 E3G and AMT 2118 EG centers come with
the GPRS module.
G
R
OUND
AC
AMT 2018 EG
and
AMT 2118 EG:
o
Antenna Connector

 1
SIMl

SIM2
AMT 2118 E3G:
lnlbs
O
a■■■a ■a
   °

Antenna Connector
AMT 2018 EG and AMT 2118 EG
AMT 2018 E3G

Related product manuals