EasyManua.ls Logo

Intelbras AMT 2018 E - Wireless Device Receiver Input XAR 4000 and XAT 2000;3000; 4000 Keyboard

Intelbras AMT 2018 E
52 pages
Print Icon
To Next Page IconTo Next Page
To Next Page IconTo Next Page
To Previous Page IconTo Previous Page
To Previous Page IconTo Previous Page
Loading...
8
7
Resistor
Golden
Red
Red
Red
2K2
7
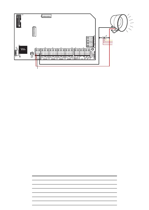
Attention: connect a 2K2 Ohm resistor (supplied with the center) in parallel with
the siren wire, this procedure prevents the siren from making noise while it is turned
off. This noise is generated by the siren wire’s short-circuit or cut detection circuit and
does not cause any damage to the equipment.
For the alarm center to recognize the cut or short circuit of the siren wire, it must be
enabled in programming mode.
1.5. Wireless device receiver input XAR 4000 and XAT 2000/3000/
4000 keyboard
Used for communication of wireless keyboards and device receivers.
Keyboard Connection:
The AMT 2018 E/EG control panel comes with the XAT 2000 LCD keyboard, which is
used to program the product.
Note: The AMT 2018 E/EG alarm center can also be connected to the XAT 3000 LED
and XAT 4000 LCD keyboards.
When unpacking the keyboard it will have some connected wires with colors and
meanings explained below:
Keyboard Connector Wire Color
Power Vdc +12V Red Wire
Grounding or (-) Black Wire
T1 Bus Green Wire
T2 Bus Yellow Wire
Zone 9 (Z9) or Wired Single Zone (*) Blue Wire
Zone 10 (Z10) or Wired Single Zone (*) White Wire
Common for zones Black Wire

Related product manuals