EasyManua.ls Logo

Intelbras AMT 2018 E - Installation

Intelbras AMT 2018 E
52 pages
Print Icon
To Next Page IconTo Next Page
To Next Page IconTo Next Page
To Previous Page IconTo Previous Page
To Previous Page IconTo Previous Page
Loading...
4
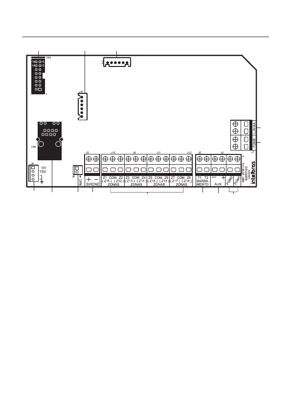
1. Installation
13 12 11
10
9
87654 321
AMT 2018 E/EG
AMT 2018 E3G
AMT 2118 E/EG
1. Connector for power supply from the switched-mode power supply;
2. Connector for network cable connection (Ethernet);
3. Battery connector;
4. Siren input;
5. Zone/sector input;
6. Bus input T1 and T2;
7. Auxiliary Output (AUX);
8. PGM programmable output;
9. Telephone output;
10. Telephone line input;
11. Connector for recording the center’s micro;
12. Connector for recording the micro that controls the GPRS card;
13. Connector for GPRS module.
Note:
»
The GPRS XL 865 module is only compatible with the AMT 2118 EG center,
whereas the GPRS AMT E/EG module is only compatible with the AMT 2018 EG center
.
»
AMT 2018 E3G is only compatible with 3G module.

Related product manuals