EasyManua.ls Logo

ISA MILLENIUM ST - Wiring Diagram - 412100622000

ISA MILLENIUM ST
60 pages
Print Icon
To Next Page IconTo Next Page
To Next Page IconTo Next Page
To Previous Page IconTo Previous Page
To Previous Page IconTo Previous Page
Loading...
ATTACHMENT
46
EN
428000467237 MILLENNIUM
USE AND MAINTENANCE MANUAL
7
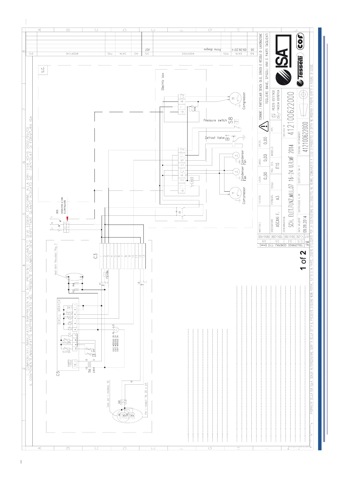
WIRING DIAGRAM - 412100622000 - 1 of 2
B1
DEFROST VALVE
V2 SIDE HEATED GLASS
C3 MULTIPOLAR TERMINAL BOARD S8 PRESSURE SWITCH
C5 ELECTRONIC CONTROL BOARD U1 COMPRESSOR
F2 FUSE U2 CONDENSER FAN
I1
SHOWCASE SWITCH
U3 EVAPORATOR FAN
I2 LIGHT SWITCH V1 FRONT HEATED GLASS
L3 ONE-LAMP ELECTRONIC REACTOR GD LED POWER SUPPLY
L4 TWO-LAMP ELECTRONIC REACTOR HL LED LIGHT
L6 FLUORESCENT TUBE T5 I3 ELECTRIC BOX SWITCH
R3 PERIMETER TRIM HEATER KM1 COMPRESSOR RELAY
R4 PLANE TRIM HEATER T6 TRANSFORMER
R9
RETARDER
T7 TRANSFORMER
S1 TEMPERATURE PROBE D12 RECTIFIER BRIDGE
S2 DEFROST PROBE D13 RECTIFIER BRIDGE
BENCH MULTIPOLAR TERMINAL BOARD
1 ELECTRONIC CONTROL UNIT POWER SUPPLY PHASE INPUT
2 ELECTRONIC CONTROL UNIT POWER SUPPLY NEUTRAL INPUT
3 COMPRESSOR CONTROL PHASE OUTPUT
6 SOLENOID VALVE CONTROL PHASE OUTPUT
10 DEFROST VALVE POWER SUPPLY PHASE OUTPUT
12 LIGHTS POWER SUPPLY PHASE INPUT
13 LIGHTS POWER SUPPLY NEUTRAL INPUT

Related product manuals