EasyManua.ls Logo

ITV Greenline HE E6-E11 - Page 18

Default Icon
80 pages
Print Icon
To Next Page IconTo Next Page
To Next Page IconTo Next Page
To Previous Page IconTo Previous Page
To Previous Page IconTo Previous Page
Loading...
Technical information
6 720 802 419 (2012/06) en
18
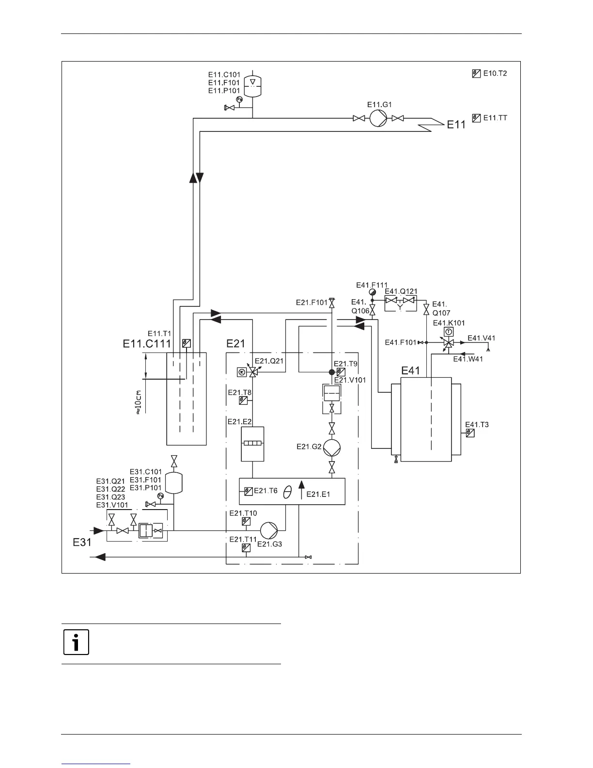
7.2.4 E6-E11 (E13-E17)
Fig. 13 Unmixed heating circuit with buffer tank and external hot water heating
When installing to underfloor heating systems with individual room
control, a system solution with a buffer tank (E11.C111) is required to
guarantee the flow over the heat pump.
6 720 649 701-03.1I
For explanations to the system solutions (Æ 7.2.1 ).

Table of Contents